The Regent Theatre, 133 Queen's Road, Brighton
Brighton's Theatres Index
Above - A Drawing showing the proposed exterior and main entrance to the Regent Theatre, Brighton in 1921 - From the Academy Architecture and Architectural Review Vol 53 1921.
![]()
The Regent Theatre was situated on Queen's Road, Brighton and first opened on Wednesday the 27th of July 1921. The Theatre was designed by the architect Robert Atkinson in the Adam, Art Deco Style and built for Provincial Cinematograph Theatres Ltd., on a site which had previously been home to the Unicorn Inn, a public house which had stood there since 1597.
Right - Some internal views of the Regent Theatre, Brighton when it first opened in 1921 - From the Academy Architecture and Architectural Review Vol 53 1921.
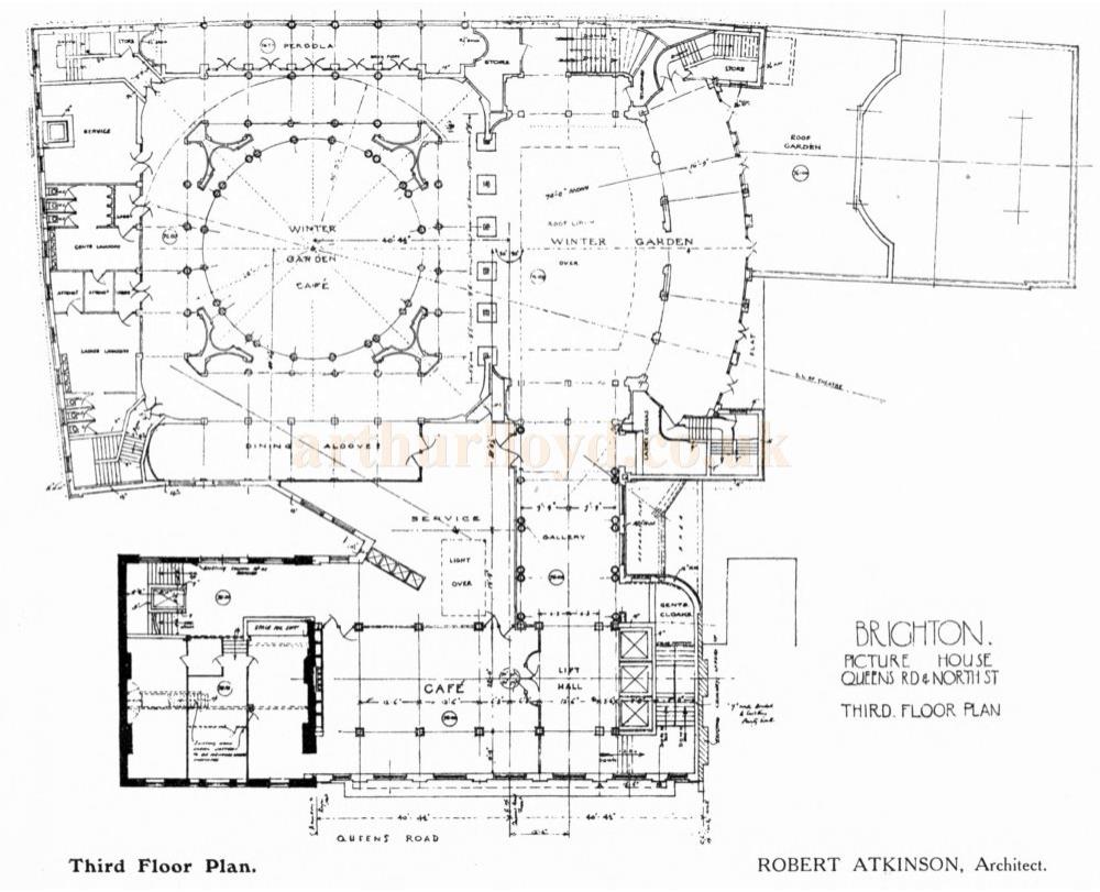
The Regent Theatre was built primarily as a Cinema but it did have a small stage and a large orchestra pit and was intended to be used for concert performances and small variety shows, there were five dressing rooms for artists on the second floor above the stage. The Theatre was equipped with a Norman Hill & Beard Theatre Organ, and it also had a large Georgian style Restaurant with its own orchestra, a Cafe designed to resemble an 18th century Ship, and on the third floor above the stage and auditorium was a large Winter Garden and Tea Room which would later be converted into a Ballroom and Dance Hall for 1,000 people, see image below.
The Regent was the first of the Provincial Cinematograph Theatres (PVC) Cinemas to be built and cost £400,000 to construct and fit up, an enormous sum in the 1920s. Although the main architect was Robert Atkinson the interiors and designs were carried out by Walpole Champneys, Walter Bayes and Lawrence Preston.
The Stage Newspaper reported on the Regent Theatre in their 28th of July 1921 edition saying:- 'Brighton's new kinema and concert hall, the Regent, which is the largest in the kingdom and has cost £400,000 to build, was opened to the public yesterday - (Wednesday)...
Above - Some internal views of the Regent Theatre, Brighton when it first opened in 1921 - From the Academy Architecture and Architectural Review Vol 53 1921.
...Mr. Robert Atkinson, the architect, has designed a palatial building. Among its leading features are accommodation for 5.000 persons, sufficient exits to empty the auditorium in three minutes, largest balcony in Great Britain, a pipe organ in halves, costing £8.000, a sixteenth century Italian Renaissance restaurant, and a cafe designed like the ward room of an old three-decker.
There is an ingenious system of ventilation - under the Plenum system all air entering the building is "first, washed and cleansed of impurities, and then warmed or cooled to the correct temperature for the season of the year."...
Above - Robert Atkinson's Plans for the Regent Theatre, Brighton - From the Academy Architecture and Architectural Review Vol 53 1921.
...What will chiefly please the public is the atmosphere of luxury which has been created. From the foyer one looks down through vaulted arches into the auditorium below. The stage is out of sight, but one can hear the orchestra and see such part of the audience as is within one's particular angle of vision. One may go into the Ship Cafe and imagine oneself in the wardroom of an eighteenth century three-decker, for that is the realistic shape the architecture takes.
Right - Some internal views of the Regent Theatre, Brighton when it first opened in 1921 - From the Academy Architecture and Architectural Review Vol 54 1922.
Lord Ashfield, speaking at an inaugural luncheon on Tuesday, claimed for the Regent that it was more than a picture house. It was a place of entertainment in its widest sense, where the best of music would be given and the highest class of concerts performed. An indication of the quality of the latter is furnished by the fact that the future engagements include Miss Carrie Tubb, Mme. Kirby Lunn. Mr. Harry Dearth. Mr. Frank Mullings, M Zacharewitsch, and Mr. Norman Williams. On Sunday the artists are Miss Clara Butterworth and Mr. Thorpe Bates. A first performance of Mr. Herman Finck's suite "My Lady Dragonfly" is to be rendered.
There is capacity for an orchestra of 70. The conductor of the orchestra is Mr. Basil Cameron, the musical adviser to the Provincial Kinematograph Theatres, Ltd. Mr. Harold Ketelbey is the principal violin and deputy conductor. Mr. Gaston Borch, Norwegian conductor, has been engaged to arrange the musical programmes for the chief films. There are to be daily organ recitals by Mr. George Swaine and Mr. Quentin McLean.'
The above text in quotes was first published in the Stage Newspaper, 28th of July 1921.
Above - Some internal views of the Regent Theatre, Brighton when it first opened in 1921 - From the Academy Architecture and Architectural Review Vol 54 1922.

Above - The Ballroom at the Regent Theatre, Brighton in 1931 - From The Bioscope, 17th of June 1931.
The Regent Theatre had first opened in July 1921 but less than a decade later, on Friday the 25th of January 1929, it was damaged by a serious fire which destroyed the stage and dressing rooms, and caused considerable smoke damage to the auditorium and water damage to the Theatre's Organ.
Right - A Google StreetView Image showing the site of the former Regent Theatre, Brighton in August 2021 - Click to Interact.
The fire had broken out towards the end of a showing of the Film 'Two Lovers' but the audience were evacuated safely. Amazingly the Restaurant and Dance Hall were reopened the following day but the Theatre itself would be closed for some time.
Undeterred the owners soon had the Theatre renovated, this time to the designs of W. E. Trent, and reconstruction by the firm of T. J. Braydon, and it reopened just six months later on the 1st of July 1929 with the film 'The Singing Fool'. The renovation included a new more modern square Proscenium, a fresh colour scheme, and a new Theatre Organ by Wurlitzer.
For a while Silent Films and Stage Shows were still put on on Sundays at the new Regent but "Talkies" had soon taken over for the rest of the week. The Theatre was later operated by Gaumont British Theatres and later still by the Rank Organisation.
By the 1960s the writing was on the wall for the Regent, its once fabulous Dance Hall was converted for Bingo use in July 1967 and by April 1973 the whole building closed down and was subsequently demolished the following year. A branch of Boots stands on the Theatre's site today.
Some of the information for this Theatre was gleaned from the excellent Cinema Treasures Website.
If you have any more information or Images for this Theatre that you are willing to share please Contact me.














































