Theatres in Clapham, Clapham Junction and Battersea
The Grand Theatre / Essoldo Cinema - Munt's Hall / The Grand Hall of Varieties - The Imperial Picture Theatre - The Shakespeare Theatre - The Electric Pavilion Lavender Hill - The Electric Pavilion, Clapham High Street - The Clapham Picture House / Electric Palace / ColiseumCinema - Munt's Hall and The Theatre management consortium of Dan Leno, Herbert Campbell, Harry Randall, and Fred Williams - The Battersea Arts Centre / Town Hall - Majestic Theatre / Gaumont Cinema - Memories of Clapham's Theatres and Cinemas
Also see in this area - The Battersea Palace - The Riverside Theatre, Battersea Park
The Grand Theatre, 21 St. John's Hill, Clapham Junction, Battersea
Formerly - The New Grand Theatre of Varieties - Later - Essoldo Cinema / Mecca Bingo / The Grand Nightclub and Concert Venue
Introduction - Opening Description - Opening Review - Alan Chudley on the Clapham Grand in the 1940s - Tony Rogers, Chief Projectionist at the Grand in the 1950s
Above - A Google StreetView Image of the Clapham Grand - Click to Interact
![]()
The Grand Theatre
in Clapham Junction, Battersea was designed by Ernest
A. E. Woodrow and is today the only completely surviving example
of his work. The Theatre was constructed by Gray Hill of Coventry and was first opened on Monday the 26th of November 1900 with a Music Hall production featuring
many of the best known artistes of the day, see review below.
When the Theatre opened it had a capacity of 3,000 and a stage 68' wide
by 28' deep.
Right - A 1912 Variety Poster for the Clapham Grand Palace - Courtesy Ron Knee Archive.
The Theatre was built for a consortium which was led by the well known Music Hall artistes Dan Leno, who lived nearby in Clapham Park; Herbert Campbell; Harry Randall; and Fred Williams. They had already built two Theatres, namely The Granville in Waltham Green and The Camberwell Palace, both of which have since been demolished. Before building the Clapham Grand they took over an earlier Concert Hall in Clapham called Munt's Hall to see if their idea of a larger hall in the area was viable. Satisfied that it was they set about commissioning A. E. Woodrow to build their new Theatre, the Grand. It was to be the consortium's last venture in Theatre building however, as the Syndicates were soon to become all too powerful.
The ERA reported on the opening of the Grand Theatre in their 1st of December 1900 edition saying:- 'The patronage enjoyed by Mr Jesse Sparrow and his directors reached such a high pitch of recent years at the Grand that they at last found it absolutely necessary to look about them and procure a site whereon to erect a hall which should be in keeping with their ever-increasing requirements. The result has been the erection of a place of amusement on St. John's-hill, appropriately entitled the New Grand...

Above - An Engraving of the Grand Palace of Varieties, Clapham Junction - From the ERA, 1st of December 1900. To see more of these engravings and sketches click here.
...Mr
Ernest A. E. Woodrow, the architect (Shown Right), has made
a simple anti free design in Renaissance style, executed in red brick
and stone, and having for its central feature a group of entrances to
the vestibule. On either side of this central arrangement two projecting
turrets rear their heads some 80ft. above the pavement. In entering
the building one passes beneath a handsome wrought-iron and glass canopy;
and thence, through one of the arched entrances, a spacious vestibule
is reached with its marble steps, mosaic floor, and decorated walls
and ceiling. On the right is the staircase to the circle; and a door
on this side opens into the corridor leading to the fauteuils. Immediately
facing the entrances are the doors to the pit stalls and pit.
Right - Ernest Woodrow, architect of the Grand Theatre, Clapham - From the ERA, 1st of December 1900.
On entering the pit, one is struck with the rake of the floor, which affords a good view from any point, Extensive seating is provided on the circle and gallery levels; and an uninterrupted view may be had in all the rows from the absence of pillars. The interior is decorated in cream and gold; and the upholstery is of a crimson hue, the effect being very striking. Electric fans and a sliding-roof will contribute to keep the air within the building pure. The stage is a fully equipped one, a double asbestos and iron curtain separating it from the auditorium. An elegant railing in polished brass is a conspicuous feature of the orchestra accommodation. The electric illumination of the hall will be produced by the company's own plant. The holding capacity is estimated at about 3,000.
The builder is Mr C. Gray Hill. Mr Francis H. Bull has designed and painted an attractive drop (Shown Below M.L.), being also responsible for some pretty and effective scenery. The whole of the seating, upholstery, draperies and curtains, the draperies and proscenium border, which are of a very handsome design of ruby plush, with applique; of gold satin and fringe to correspond, are by Messrs H. Lazarus and Son...

Above - An early image of the auditorium, proscenium, and stage of the Grand Theatre, Clapham showing the Theatre's original 'Willow Pattern Plate' Act Drop - From The Architect, 22nd of May 1903.
...The
inhabitants of Clapham-junction are to be congratulated on their handsome
and up-to-date theatre of varieties; and if Mr J. Sparrow (Shown
Right), seconded by Mr Arthur Yates, provide as excellent an entertainment
as was their custom at the old hall, the success
of the Grand is assured, and it will doubtless secure a large measure
of prosperity and renown.
Right - Jesse Sparrow, General manager of the Grand Theatre, Clapham on its opening - From the ERA, 1st of December 1900.
On Monday last, the opening night, a large concourse of people collected, a goodly number of whom were unable to gain admittance, while inside the building was crowded from floor to ceiling. On the rise of the curtain, the directors and others connected with the company which owns the hall were disclosed and Mr Leo Stormont and Miss Alexandra Dagmar, stepping on, sung the National Anthem in good style and voice. It was heartily joined in by the audience.
Mr
Dan Leno (Shown Left) then made a quaint speech, in which he
said he came with the intention of opening the hall, but, arriving rather
late, found it already open. He then spoke of the position of the music
hall artiste some fifteen years ago, remarking that now it was possible
for a man to bring his wife to the music
hall and know the performance would be all it should be. After congratulating
the residents at Clapham-junction on having such a magnificent palace
of varieties, he went on to say that those who controlled the hall would
do all they could to provide an even better entertainment than that
given at the late hall, as the accommodation was
larger.
Left - Dan Leno - From the ERA, 1st of December 1900.
Mr Herbert Campbell made a few suitable remarks, finishing by asking the audience if the acoustic properties of the building were good, if the line of sight was alright, and if they could see in every part of the house, and was answered by loud cries of "Yes" and cheers.
The privilege of being the first artist to appear at the New Grand fell to Mr Ben Albert, who rendered three songs in comic style, one with a refrain, "Oh, it is grateful and comforting," a parody on "There is beauty all around," and a song of rhymes. All Mr Albert's selections, which caused much laughter, were well received. Mr Franco Piper, who followed, is a banjo player of considerable dexterity. His imitations of church bells were excellent. Those mirth-provoking and really comical artistes, Foreman and Fannan, can always procure a good hearing, and although their entertainment does not change much, they can invariably be seen and enjoyed. The patrons of the New Grand evidently liked them, judging by the reception accorded to "Percy and Harold" on Monday. They are extremely funny in a duet, smartly written, entitled "What a man thought." Miss Alexandra Dagmar scored heavily. She has a particularly pleasing voice, and in the selection from El Capitan is heard to advantage. Her high notes are exceedingly clear. Her rendering of "Killarney" was good, and she received quite an ovation for her effort. A turn of a totally different nature was that of the Zaro troupe of lady and gentleman acrobats. The chief lady exhibits an enormous amount of strength, and these artistes do some really clever feats. Berzac's Circus, composed of a performing mule and ponies, is excellent. Mons. Berzac has trained his animals well, and much amusement is caused by some boys endeavouring to ride the donkey - an altogether impossible task. There is a revolving table which the ponies can stand on, but which throws the boys in all directions when they try. If anyone is ever successful in earning the prizes offered by Mons. Berzac for riding the donkey or standing on the table he will well deserve them. Miss Kate Carney is a general favourite, and especially so at Clapham-junction. Her reception was most hearty. She sang "the twopenny tube," a song about an absent-minded beggar, with a chorus, "But, oh, the beggar! and a sentimental ditty, "Are we to part like this," the refrains of which were loudly taken up by the audience. Miss Constance Maxon was distinctly amusing in a District Messenger boy ditty, another in which she imitated a doll saying "papa" and "mamma," and a boy crying and laughing. She finished her turn with mimicry of Chirgwin and his singing of "The Blind Boy."
Mr
J. Sparrow then announced that, although he did not expect to have to
make a speech, he had to say that as one of the Brothers Horne was ill,
he had secured Mr Harry Pleon as a substitute. The latter gentleman
is an excellent comedian. His rendering of "Down the
Strand" is "enough to make a cat laugh." Mr Harry
Pleon's imitation of the way in which Messrs R. G. Knowles and Dan Leno
might recite "The Absent-Minded Beggar" is very well done,
the latter especially so. Some smart juggling was given by Jehan Bedini
and Little Arthur, a clever and entertaining pair. Mr Arthur Rigby was
in splendid form, and rendered in a diverting manner "I'm a plumber
" and "How to manage a husband." The entertainment was
concluded by Mr Fred Karno's troupe of comedians in that mirthful and
comical sketch The New Woman's Club.
Right - A Poster for the Clapham Grand for the week of October 13th 1947, during Nat Tennens' Management, who ran the Grand between 1946 and 1949.
The foregoing has been the programme at the Grand during the current week. Amongst the many well-known people present at the opening function were:- Mr and Mrs Dan Leno, Miss Georgina Leno, Master Herbert Leno, Mr and Mrs Herbert Campbell, Mr and Mrs Fred Williams, Mr and Mrs Henry Joyner, Mr and Mrs T. G. Hales, Miss Hales, Mr and Mrs Arthur Magnus (Liverpool), Mr John Parker (Nottingham), Charles Temperley, W. Howard Smith, A. E. Golding, Henry Comfort, Edward Munk, G. E. S. Venner, Miss Fortesque, Harry Lundy, Fred Holden, W. Ancliffe, Tom Rice, Mrs Harry Randall, Miss Lulu Randall, Mr and Mrs Grimsdall, Miss Dora Clifford, Mr and Mrs Adelaward, Miss Flo Chapman, Miss Kitty Beresford, Mr Lawrence Barclay, and Mr Henri Cazman.'
The above text in quotes was first published in the ERA, 1st December, 1900.

Above - The Grand, Clapham Junction in 2005 - Photo Courtesy Alan Garner & Richard Milsom.
The
Grand Theatre opened on Monday the 26th of November 1900 with a Music Hall production featuring
many of the best known artistes of the day, see review above,
and went on to have a successful career as a Music Hall and Variety
Theatre for the next 40 years. However, in 1930 the Theatre was fitted
up for cinema use and although it still provided variety productions it would later go on to full time Cinema as the renamed Essoldo Cinema. The projection room was constructed behind
the screen and the films had to be laced emulsion forwards, the sound
head being modified to get the sound to function, the projectors at
that time were Kallee 8s.
Right - A Programme for the Clapham Grand on October 6th 1947, during Nat Tennens' Management, who ran the Grand between 1946 and 1949.
The Theatre was converted for bingo use in 1972 and run by Mecca Bingo. In 1991 the building was partly restored and altered for live music concerts but this was mostly unsuccessful. In the late 90s the pub chain Whetherspoons bought the Theatre hoping to convert it into a pub but The Theatres Trust, English Heritage and Wandsworth Council all felt that the interior would be damaged and the project was scrapped. You can read about this successful appeal against pub conversion form the website of The Institute of Historic Building Conversion here. Today the Theatre is being used as a Nightclub and Concert Venue, still retaining The Grand name.

Above - The Auditorium of the Grand, Clapham in 1992 - Courtesy Ted Bottle.
The remarkable thing about the Grand is that despite its history and various uses throughout the years, and even its current incarnation, the Theatre is still in a pretty good state, has much of its original decoration, most of its structure remains intact, and it could be readily converted back into a live Theatre if the inclination and funds were present. The Clapham Grand is today a Grade II listed Building. There is more on the Clapham Grand below.
You may like to visit the Clapham Grand's own Website here.
A Crowdfunder Campaign, launched during the Coronavirus Pandemic in the Spring of 2020, in an attempt to help the building reopen and stay in business once the Lockdown has been lifted, can be found here.
If you have any more information or images for this Theatre that you are willing to share please Contact me.
Alan Chudley on the Clapham Grand Theatre in the 1940s

Above - The Grand, Clapham Junction, which is the tallest building on the right - From a postcard 1905 - Courtesy Alan Garner & Richard Milsom.
I was very interested in the Grand Clapham. During the mid 1940s I knew
this Theatre very well, and was friendly with the Stage Manager Ernie
Skeggs.
I include a programme for this time when on a Saturday night a good seat in the dress circle could be had for one shilling and nine-pence (17½ p).
Right - A Variety Programme for the Grand, Clapham in 1945 - Courtesy Alan Chudley.
The Theatre was extremely well run at this date. The Lessee Mrs George Barclay, wife of the one time agent George Barclay, was better known as the Music Hall star Kate Carney.
The Booking agent for the Grand, Gordon Norval, was also the booking agent at that time for the Kilburn Empire. - Courtesy Alan Chudley.

Above - A Variety Programme for the Grand, Clapham in 1945 - Courtesy Alan Chudley.
Tony Rogers, Chief Projectionist at the Clapham Grand in the 1950s

Above - The Grand, Clapham Junction in 2005 - Photo Courtesy Alan Garner & Richard Milsom.
A visitor to the site, Tony Rogers, has sent along some interesting memories of his time at the Clapham Grand when he was Chief Projectionist there in the late 1950s:- 'Reading your article about the Grand Clapham Junction brought back many fond memories as I was the Chief Projectionist at the Grand (Essoldo) between 1956 and 1958. It was used as the shop window to demonstrate the new "Essoldomatic" automatic projection system so the projection room had to be kept spotless at all times.
The Manager at that time was Terry Cooke and was indeed a personal friend of the late Anthony Newley who often visited the theatre. Terry Cook had been a POW in Germany during the war and would tell some great stories of his time spent in captivity. After the war he got into theatre management and before coming to the Grand had managed a large theatre in Harrogate. The managers office at the Grand was very lush, it even had its own washing and changing room.
I
remember Terry Cook showing me some old tickets and sales books from
the Theatre's early days with Dan Leno and even Charlie Chaplin.
Right - The Projection Room at the Grand / Essoldo in the late 1950s - Courtesy Tony Rogers.
The Projection room at the Grand was in the old Lime (Spotlight) room way up above the upper circle. We had to carry the film transit cases up numerous flights of stairs (we must have been very fit then) and we were equipped with Two Kalee model 21s projectors, President Arc lamps and Duosonic sound system. This in 1956 was state of the art. The grand was chosen by Sol Sheckman (Essoldo) to promote the Essoldomatic Projection system. They were trying to sell this to other cinema chains, and eventually did in 1958 when it was sold to the Rank organisation and re-named Projectormatic. We were still using twenty minute reels of film in those days and this gadget would auto change-over reels, close the screen curtains Etc. The projection room being so high up and away from living beings meant that we could only see the stage and screen from the projection ports, this meant we had no idea if we had an audience of 20 or 2000.
I well remember showing some big blockbusters during my time there. "Oklahoma", "The King and I", "High Society" were just a few that come to mind. The upper circle had no seats but was often used by policemen who should have been on the beat but decided going to the pictures was much more to their liking. In 1958 I was moved on to run two cinemas in Hertfordshire, sadly I said my farewell to the Grand, and then in a few years it was to become a Bingo Hall. I was delighted to learn that it became a listed building, and long may it prosper in whatever form it is used for.' Text and image kindly sent in by Tony Rogers.
Munt's Hall, St. John's Hill, Clapham Junction
Later - The Grand Hall of Varieties / The Imperial Picture Theatre

Above - An early photograph of Munt's Bro's Pianos and the Entrance to Munt's Hall - Courtesy The Munt Family Archive
The Imperial Picture Theatre which some people may still remember today was situated on St. John's Hill in Clapham Junction and first opened as such in 1914. However, the building was first constructed as a Concert Hall called Munt's Hall which was opened by the Lord Mayor of London with a fine art exhibition in 1878.

Above - The opening of Munt's Hall in 1878 - Courtesy The Munt Family Archive
Munt's
Hall was situated behind the Munt's Brother's Piano Showroom and Head
Office but had an entrance beside it on St. John's Hill.
Right - A Map showing the location of Munt's Hall, Clapham Junction and Munt's Brothers Pianos - Courtesy The Munt Family Archive. The Hall was situated behind the Munt's Bro's Building.
The Munt family
also owned their own Piano Factory in Eltringham Street, Battersea which
was Managed by William Munt, but sales were operated from the Showroom
on St. John's Hill. They sold pianos, sheet music, violins and other
orchestral instruments.
Left - Two Complimentary Tickets for a 'Grand Evening Concert' at Munt's Grand Hall in September 1893 - Courtesy Barry Booth who says he found them inside an old piano 25 years ago.
Munt's Hall was later renamed the Grand Hall of Varieties when a consortium led by the well loved Music Hall artistes Dan Leno, Herbert Campbell, Harry Randall, and Fred Williams, took over the building to see if their idea of a larger Theatre in the area was viable.

Above - A photograph of Munt's Bro's Pianos and the Entrance to the now renamed Grand Hall, Clapham Junction - Courtesy The Munt Family Archive.

Above - An early photograph of the interior of Munt's Hall - Courtesy The Munt Family Archive

Above - An early photograph of the interior and Stage of Munt's Hall - Courtesy The Munt Family Archive

Above - An early photograph of the 'Sitting-Out Room' of Munt's Hall - Courtesy The Munt Family Archive
As it turned out the Grand Hall of Varieties was very successful but when the Hall's Lease eventually expired, and was not able to be renewed because of new fire regulations, the Consortium had to look elsewhere to continue their operations. Edward Munt then sold them a large plot of land he owned at the corner of Severus Road, a few yards further up St. Johns Hill, and the Consortium, by then managed by Charlie Sparrow, set about commissioning A. E. Woodrow to build the new Grand, Clapham Junction, which opened in 1900 and is still standing today. This was to be the Consortium's last venture in Theatre building as the Syndicates were soon to become all too powerful for the smaller players in Theatre building, more details on this below.
The original Hall was then closed up and remained empty for many years but was eventually refurbished in 1909 with a new sprung Birds Eye Maple floor and used for private Balls and Amateur Dramatics under the management of Edward Munt until 1910. The Hall had a capacity of 750 and a Mr. Munday was its 'Keeper' during this period.
In
December 1909 the nearby Arding
& Hobbs building caught fire and was totally destroyed, eight members
of staff died in the fire along with several firemen. Henry Arding said
at the time that it looked to be the end of their store in Clapham Junction.
Right - A Ticket for a Grand Evening Concert' at Munt's Hall for a Benefit for the Widow and Children of A. E. Stewart, on August the 10th 1892 - Courtesy The Munt Family Archive.
However, in March 1911 Edward Munt came to the rescue when he sold his Piano showroom and offices to Henry Arding who rebuilt their store in the old Munt's Buildings, and Arding returned the favour by leasing a property they owned at 15 to 17 St. John's Road to the Munts where they reestablished their Piano Showrooms.
The sale of the Munt's Building to Arding & Hobbs didn't include the old Munt's Hall however, and in 1914 the Hall was converted into a Cinema called The Imperial Picture Theatre, see details below. There is also more information on Munt's Hall and its famous Consortium period below.
Some of the above information on Munt's Hall was gleaned from the Diaries and Memoirs of Edward John Munt. The text and many of its accompanying photographs, were very kindly sent in by Malcolm Munt, great grandson of Edward Munt, and are courtesy the Munt Family Archive.
Munt's Hall and The Theatre management consortium of Dan Leno, Herbert Campbell, Harry Randall, and Fred Williams
From 'Harry Randall, Old Time Comedian' 1930
It was about this time that Leno, Campbell and myself conceived the idea of going into music-hall management. Fred Williams joined us, and our first enterprise was the taking over of a place called Muntz Hall (sic), just by Clapham Junction. We formed a small company, and Jesse Sparrow, who had gained considerable experience, with the Saturday night concerts at The Town Hall, Shoreditch, was made manager. I took on the secretaryship for a short time till we engaged a Mr Venner. We renamed the place "The Grand Hall, Clapham."
It was a small hall holding about six or seven hundred people. We gave it a great send off by the entire Board appearing the first week. I may remark, however, that we didn't draw our usual salaries! We prospered very well the first year and paid a dividend. Then we got more adventurous. We leased a hall at Croydon and named it "The Empire"; it belonged to a man known as "Spangle" Hales, who had a shop in Bow Street where they sold all sorts of tinsels, theatrical jewellery, and spangles.
In his spare time he embraced many other callings. He once ran (many years ago) a "Clown Cricketers Team". At the Drury Lane Theatre he was the super master; he was also the gentleman who supplied all the horses and ponies for theatrical shows. He was decidedly illiterate, but he had a wonderful faculty of "getting the dibs". He earned a nickname in a certain dressing room at the "Lane" where they used to play poker. On one occasion he was asked to show his "hand" and on putting his cards down said: "Haces and heights!" He was known for a long time after as Haces and Heights. This gentleman joined the Board when we turned the above mentioned hall into a company.
Then we aspired further. We bought a piece of ground at Walham Green, formed a company and built "The Granville". Our architect, who took a friendly interest in us, was the celebrated theatre designer, Frank Matcham, who built the Coliseum and the Hippodrome. The last-named, of course, was originally a circus, where the whole of the "ring" could be lowered and filled with water for water carnivals and other aquatic spectacles. The interior of this little theatre was entirely decorated with faience-work carried out by Doultons. It was the first to be decorated in this way, which possessed a double advantage: it was easily washed down and always looked fresh.
Then we went a bit further and built the Palace, Camberwell. Not being satisfied with this, we built a large music-hall near The Grand, Clapham, and closed the small one. We were very proud of our little growing plants. Then our troubles began.
The managers and proprietors of all the big halls began to look askance at our little suburban successes, and decided between themselves that we were to be crushed. They made no bones about it; individually they told us so to our faces.
So they started their campaign. Every contract they made with an artist had a "barring" clause ruling us out, and though we had bookings ahead with prominent performers, the Syndicates got them to sign fresh contracts with the boycott clause inserted. Of course, the performer could hardly be blamed. Naturally he could not afford to fall out with so powerful a combination.
But the tactics of these managers became very questionable. Artists would religiously turn up for their engagements, only to be promptly injuncted. Not only did they act thusly, they so timed their injunction that it was not served till late on the Monday afternoon when all the bills were out and we were debarred from getting decent substitutes. We fought against it for a long time, but the attacking force was too powerful for us, and we slowly decayed.
The Palace, Camberwell, went into liquidation; Walter Gibbons took over The Grand, Clapham (at an arrangement), which was finally bought by his company. The only little monument left of our efforts is The Granville, Walham Green, which, I understand, is still doing fairly well. We lost a great deal of our own money - for which we had conscientiously backed our horses - but I am afraid we drew in a great many of our friends.' - An Extract from 'Harry Randall, Old Time Comedian' 1930 - Kindly sent in by Val Appleton, great niece by marriage of Harry Randall.
The Imperial Picture Theatre, St. John's Hill, Clapham Junction
Formerly - Munt's Hall / The Grand Hall of Varieties - Later - Imperial Cinema / Ruby Cinema

Above - A photograph of The Imperial Cinema, Clapham Junction - Courtesy The Munt Family Archive
The
sale of the Munt's Building to Arding & Hobbs
in March 1911 didn't include
the old Munt's Hall, and in 1914 the Hall was converted into a Cinema called The Imperial Picture Theatre.
The new Cinema had a capacity of 800 and opened with the film 'Moths.'
Right - A Programme for the Imperial Picture Theatre (Late Munt's Hall), Clapham Junction.
The Imperial Picture Theatre Programme (shown right and below) has the following details of the films which were shown that week: On August the 9th, 10th and 11th the programme consisted of 1. Pathe Gazette, 2. Mary Pickford in 'Behind the Scenes', 3. 'A Near Thing' Comedy, 4. 'Our Empire's Shield' The official Admiralty Pictures production showing how the ships ran the gauntlet in order to supply the nation with food, 5. 'Eastward Ho' From W. F. Raine's famous novel, 6. Selection by the Imperial Symphony Orchestra under the Direction of Mr. Julius Kantrovitch.
On August the 12th, 13th, 14th and 15th the programme consisted of 1. Pathe Gazette, 2. 'A Mexican Trifle' a comedy featuring Winkle, 3. Charles Urban's 'Movie Chats', 4. 'South of Santa Fe,' a drama in two acts, 5. 'The Flag Lieutenant' by Major W. P. Drury and Leo Trevor. Adapted from Mr. Cyril Maude's great West End success, 6. Selection by the Imperial Symphony Orchestra.

Above - Details of a Film Programme at the Imperial Picture Theatre (Late Munt's Hall), Clapham Junction.
In 1955 the Cinema was renamed when the 'Picture Theatre' part of the name was dropped in favour of a new simpler 'Imperial Cinema'. The Imperial closed in February 1973 at the end of its run of showing the films 'Innocent Bystanders' and 'Crucible of Terror.'
The Cinema was then renamed The Ruby Cinema under the ownership of Fred Clark who had named it after his wife, he reopened it on the 10th of April 1973 with 'The Best Pair of Legs in the Business', the well known actor Reg Varney, who was also in the film, conducted the opening ceremony. The Cinema now had a smaller capacity of 450.
The Ruby Cinema closed in 1981 whilst showing the film 'Raiders of the Lost Ark.' And that was the end for the building as the Cinema was then demolished to make way for a branch of Barclays Bank.
If you have any more information or images for this Theatre that you are willing to share please Contact me.
The Shakespeare Theatre and Opera House, 168 Lavender Hill, Clapham Junction
Later - The Shakespeare Grand Cinema

Above - An early postcard of the Shakespeare Theatre, Clapham Junction
The
Shakespeare Theatre was built by Charles Gray Hill to the designs of
the prolific Theatre Architect W.
G. Sprague on a site next to the Battersea Town Hall, which is still
standing today as the Battersea Arts Centre, on Lavender Hill, and was separated from it by Theatre
Street.
The Shakespeare Theatre opened under the management of William Bennett on the 16th of November 1896 and was mainly used as a 'legitimate Theatre' showing drama and plays, but was also put into use as a Pantomime house at Christmas time.
Right - An early pantomime programme for the Shakespeare Theatre, Clapham Junction, for a production of 'Dick Whittington' at Christmas 1897/98. In the cast were Emmie Owen, Richard D'oyly Cart, Jeannie Macdonald, Arthur Alexander, Ernest Heathcote, Edwin Brett, Kathleen Raye, Burt Shepard, Nancy Mostyn, Ethel Bryant, Little Luna, William Green, The Sisters Sprightly, Kyota, The Levardos, George Graves, Joe Clark, George Windsor, Fred Collins, Richard Saker, Madeline Duval, Edith Cruikshanks, Edith Buckler, Grace Allingham, May Cartwright, and Olga Durhem.
Later owner / managers of the Shakespeare Theatre would be Henry Bennett in 1907, Frederic Baildon in 1912 Thomas Baxter in 1913, Josephe Clozenberg in 1914, and later Clavering.
Ellen Terry, Lily Langtry and Sarah Bernhardt are all said to have
performed here over the years.
Left - An early programme for the Shakespeare Theatre, Clapham Junction, for a production of the pantomime 'Dick Whittington' at Christmas 1897/98.
The Shakespeare Theatre's Auditorium consisted of Stalls and Pit, Dress Circle, Balcony, and Gallery and had a capacity of 1,205 including boxes.

Above - Prices and Box Office Details for the Shakespeare Theatre Clapham Junction, from a programme for the pantomime 'Dick Whittington' at the Theatre, Christmas 1897/98.

Above - A Box Plan for the Shakespeare Theatre, Clapham Junction - From a Programme for the Imperial Grand Opera Company in 1902 - Courtesy Simon Moss, stagememories.

Above - A Drawing of the Shakespeare Theatre by Chester Dawson - From The Graphic, 14th November 1896.

Above - The auditorium of the Shakespeare Theatre, Clapham Junction shortly before it was taken over by UPT in 1928

Above - The auditorium of the Shakespeare Theatre, Clapham Junction shortly before it was taken over by UPT in 1928

Above - The Battersea Town Hall and Shakespeare Theatre - From the 'Premier Photographic View Album of London' 1907

Above - Detail from an early postcard of the Shakespeare Theatre, Clapham Junction
The Shakespeare Theatre was eventually turned over to Cinema use in 1912 although it did still stage some review shows on its stage from time to time but these were not overly successful.
In 1924 the Theatre was redecorated and then reopened as the Shakespeare Grand Cinema showing full time Cinema Presentations.
In 1928 the Theatre was taken over by the United Picture Theatres chain and by 1930 it was being run by Gaumont British Theatres who installed a British Acoustic Sound System.
Right - A Programme Cover for the Imperial Grand Opera Company at the Shakespeare Theatre, Clapham Junction in March 1902 - Courtesy Simon Moss, stagememories.
Sadly the Theatre was badly damaged by bombs during the Second World War, leaving only the facade intact. Battersea Council later bought the bomb damaged site with a Compulsory Purchase Order and demolished the Theatre in 1956 for a planned extension to their Town Hall next door.
Today a modern office block called Shakespeare House stands on the site of the former Shakespeare Theatre and you can see this and the next door Town Hall Building, which is still standing although in use as the Battersea Arts Centre today, in the image below.
Above - A Google StreetView Image showing the former Battersea Town Hall, today the Battersea Arts Centre, and the site of the former Shakespeare Theatre next door in July 2022 - Click to Interact.
If you have any more information or images for this Theatre that you are willing to share please Contact me.
The Clapham Picture House, 76 Venn Street
Formerly - The Electric Palace / The Proposed Coliseum Cinema

Above - A Google StreetView Image of the Clapham Picture House - Click to Interact. You can also go inside the Cinema by clicking the Entrance Door.
The Clapham picture House opened on the 9th of December 1992 and was a conversion of the former Electric Palace which first opened on the 10th of July 1910. The original building, with its main entrance on Venn Street, was designed by Gilbert Booth with seating for nearly 1,000 people. A new entrance was later created on the High Street in 1916.
In 1913 the Cinema News and Property
Gazette published an article on the Electric Palace in their January
8th edition saying:- 'Good pictures need good music is the opinion of
Mr, Geo. W. Snazelle, the courteous and popular manager of the Electric
Palace, Clapham Common, the resort of Clapham's elite. Situate facing
the clock tower, the theatre is in itself a landmark of the district.
Its proprietors have here adopted the same policy pursued by them in
those other parts of the Metropolis adopted by Electric Palaces, Ltd.
They have not wasted money on outside embellishment, but have made the interior what every picture palace should be, an artistic sumptuous, and cosy place. Mr. Snazelle is himself a personage of importance, as I discovered, when in the course of conversation I learnt that he was a descendant of one of the leading members of the Carl Rosa Opera Company and is the grandson of the author of that famous recitation " How Bill Adams Won the Battle of Waterloo." He is in fact a worthy son of a worthy sire. He may be said to have made his debut into cinematography at the Ladbroke Hall, North Kensington, a by no means easy place to manage, consisting as it does of a trinity, a large hall used for whist drives, a cinema theatre, and a ballroom. From thence he went to the Electric Palace, Highgate, afterwards coming to Clapham, where he is highly esteemed by his patrons of all classes.
Amongst other information which Mr. Snazelle gave me was the significant remark that picture patrons are asking for more English films, a fact which I hope Messrs. Hepworth, Clarendon, Barker, and Cricks and Martin will note. He considers that the Essanay actor Gilbert Anderson (Bronco Bill)
is
the greatest favourite amongst his audience and he also vouchsafed the
opinion that William Santschi, Selig's curly headed actor, is the admiration
of the gentler sex, whilst for Mr. Montague's special benefit that Clapham
audiences have a great predilection for Selig films.
Mr. Snazelle did tremendous business whilst showing Gaumont's "Christmas Reunion," supplementing this fine film by the engagement of Miss Doris Slater the well-known soprano who rendered "Ora Pro Nobis" and "Nazareth ' during the time the artist in the picture was supposed to be singing. I remained during a performance and feeling duty bound to remark that whilst Mr. Snazelle remains in charge here, Electric Palaces, Ltd. have no need to fear competition.'
The above text in quotes was first published in the Cinema News and Property Gazette, January 8th 1913.
The
Electric Place closed in 1918 when the owners went bankrupt. The building was then sold and the new
owners began construction of a new Cinema called the Coliseum on the
site. This was to be a huge Theatre with seating for nearly 3,000 people,
but only the foyer and facade were ever completed.
The Building News and Engineering Journal of August the 13th 1919 reported on the new Coliseum Cinema, along with a drawing of the proposed building (shown right), saying:- 'This elevation shows a reconstruction scheme of the existing cinema adjoining the "Plough Inn," Clapham, for Mr. Wm. Williams, of Albany Mansions, 87, Charing Cross Road, who is also at the head of the syndicate for acquiring the Tivoli site in the Strand. The work will be executed in Bath or Ancaster stone. Messrs. North Robin, of 99, Regent Street, W.l, are the architects.' - The Building News and Engineering Journal August 13th 1919.
Right - A Drawing of the Proposed Coliseum Cinema, Clapham - From The Building News and Engineering Journal August 13th 1919.
The
Electric Palace's auditorium survived behind this new facade and was
then turned over to other uses including a snooker hall until it was
purchased by City Screen Cinemas in 1990 and converted into the Clapham
Picture House with three screens. A fourth screen was later added in
1998, along with a restaurant and bar, and this is the building still
operating today.
Left - A Google StreetView Image of the Surviving Facade of the proposed Coliseum Cinema, now in use as a branch of Londis - Click to Interact.
You may like to visit the Clapham Picture House's own website here.
If you have any more information or images for this Theatre that you are willing to share please Contact me.
The Battersea Arts Centre, Lavender Hill, Clapham Junction
Formerly - The Battersea Town Hall

Above - An Engraving of the Battersea Town Hall, today the Battersea Arts Centre - From the Builder of the 17th of March 1883.
The Battersea Arts Centre is situated on Lavender Hill near Clapham Junction Station, and was originally built as the Battersea Town Hall in 1883. It was designed by the architect Edward Mountford and once stood next to the later Shakespeare Theatre of 1896, which was demolished in 1957, but the Town Hall building is still standing today, and thriving as the Battersea Arts Centre.
The Builder reported on the construction of the Town Hall in their March 17th 1883 edition saying:- 'New Town Hall for Battersea - This building, which is being erected by the Battersea and New Wandsworth Public Halls Company, at the comer of Lavender-hill and St. John's-road, Battersea, close to Clapham Junction Station, has the ground-door on the two frontages laid out for shops, while on the same floor behind there is a suite of rooms intended to accommodate a social club, and including reading, coffee, smoking, and billiard rooms, club-hall, and winter-garden, and kitchens and servants' offices in the basement beneath...

Above - The Battersea Town Hall, today the Battersea Arts Centre, and the Shakespeare Theatre - From the 'Premier Photographic View Album of London' 1907.
...The public-hall, which is 106 ft. long, 40 ft. wide, and 32 ft. high, is on the first floor, and entirely fireproof, as are also the staircases and approaches. There are various rooms attached, intended for retiring, cloak, and supper rooms, caretaker's apartments, and secretary's offices. The external walling has steel-coloured bricks for facings, red bricks for dressings, and moulded cornices. &c., of gauged brickwork, and ornamentation will be carved in rubbing bricks. The works are being carried out by Mr. W. Smith, of Vauxhall, whose contract is about 10,000L., and the design, which was selected from six submitted in limited competition, is by Messrs. Morris & Stallwood, architects, Reading, who are superintending the erection of the buildings.'
The above text in quotes was first published in the Builder, 17th of March 1883.
In 1965 the building was threatened with demolition but local campaigners managed to save the building from this fate and by 1970 it had been awarded a Grade II Listed Building status. In 1979, after another threatened closure, the building was converted into an independent Arts Centre, opening in 1981 with Jude Kelly as its first Artistic Director.
In 2015, during major redevelopment of the building, a major fire broke out in the building's 'Grand Hall' but thankfully much of the building was saved from the worst of the fire and its Theatre and its former Council Chamber, and the Members Library were damaged but survived.
The Battersea Arts Centre continues to this day and you may like to visit it's own Website here.
Above - A Google StreetView Image showing the Battersea Town Hall, today the Battersea Arts Centre, and next door the site of the former Shakespeare Theatre in July 2022 - Click to Interact.
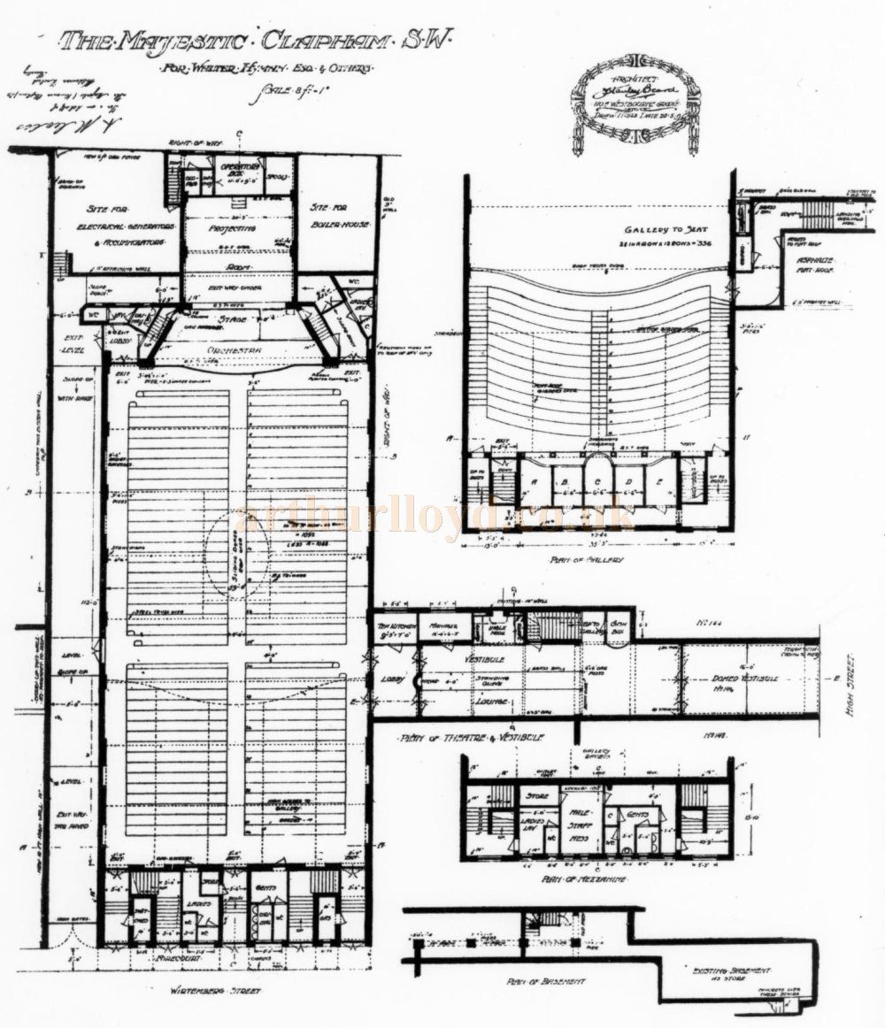
The Majestic Theatre, Clapham High Street
Later - Gaumont Cinema / Cinatra's / Infernos Nightclub
Above - A Google StreetView Image showing both the Clapham High Street and Stonhouse Street Facades of the former Majestic Theatre in August 2022 - Click to Interact.
The Majestic Theatre was situated on Clapham High Street at the corner of what was then called Wirtemburg Street but since 1919 has been called Stonhouse Street.
Right - A Google StreetView Image showing the Clapham High Street Entrance Facade of the former Majestic Theatre in March 2019, today Infernos Nightclub - Click to Interact.
The Theatre's main entrance on the High Street was slotted into the only available vacant space between a variety of shops, its small size belying the vast Theatre which was situated behind it, and which was reached through a long passage containing the Theatre's outer and inner Vestibules, decorated with Dark Oak Paneling surmounted by a Frieze depicting the Spanish Armada.
The Theatre was designed by John Stanley Beard and opened on the 27th of August 1914. Built mainly as a Cinema the Majestic also had a small Stage for live performances, along with dressing rooms for its Artists, which was used on the opening night and sporadically throughout its early years with vocal and instrumental performances in between the Films.
The Majestic could accommodate around 3,000 people when it first opened and its auditorium, decorated in the Empire Style, consisted of Stalls and one large Balcony with Boxes at the back. There was a Domed Ceiling which could be opened to ventilate the Auditorium.
Left - A Google StreetView Image showing the Stonhouse Street Facade of the former Majestic Theatre in November 2015 - Click to Interact.
Projection of Films was achieved by rear projection from behind the stage, and music was supplied by the Theatre's own Orchestra and a small Estey three-manual organ played by John Neat for the Theatre's opening.
The Builder reported on the new Theatre in their 2nd of April 1915 edition saying:- 'This theatre is built on the site of the old Clapham Stores in High-street, Clapham, and possesses the distinction of being one of the largest cinema theatres in London.
It has been erected practically regardless of expense, and accommodates nearly 3,000 persons comfortably.
Right - The Auditorium of the Majestic Theatre, Clapham when it first opened - From The Builder, 2nd of April 1915.
The shops in the High-street frontage were built and, except one, let before the site at the rear was acquired for this theatre, consequently only a comparatively narrow frontage could be obtained to the High-street. This was gutted and partially rebuilt and forms an outer vestibule panelled in marble. The inner vestibule has been carried out in an old English style with an ingle-nook recess and seats. The walls are panelled in oak and the beamed ceiling is also carried out in oak, and Mr. Norman Carr was commissioned to execute a painted frieze illustrating the Spanish Armada, etc.
The auditorium is large and exceptionally lofty, with vaulted ceiling and sliding roof, and the walls are panelled in oak. The stage is sufficient for stage plays, and there is a large balcony with boxes at the rear.

Above - John Stanley Beard's Plans of the Majestic Theatre, Clapham - From The Builder, 2nd of April 1915.
The consulting engineer was Mr. W. C. C. Hawtayne, M.Inst.E.E. The interior oakwork was executed by Messrs. Barker & Son, of Hitchin, the steelwork by Messrs. Drew-Bear, Perks, & Co., and the fibrous plaster-work by the Naverino Guild. The general contractor was Mr. A. N. Coles, of Plymouth, and the architect was Mr. J. Stanley Beard, of "Bank House," Westbourne-grove, W.' - The Builder, 2nd of April 1915.
Above - A Google Earth View showing the Front Entrance of the former Majestic Theatre on Clapham High Street with its large Auditorium space behind - Click to Interact.
The Majestic Theatre had first opened on the 27th of August 1914 and was taken over by Provincial Cinematograph Theatres in 1929 who installed a new Compton Theatre Organ in 1930 to replace the original Estey one, which was situated in the Orchestra Pit
In 1940 during the War the Theatre was closed due to bombs falling close to the building but it reopened on the 9th of February 1941.
In 1950 the Theatre was renamed Gaumont for a reopening on the 19th of June that year but after ten years of carrying this name the Gaumont was closed on the 5th of November 1960 after a last showing of the Film 'The Entertainer'.
Right - An article on the closure of the Gaumont Cinema, Clapham - From the South Western Star, 21st of October 1960.
The Theatre had an interesting career after its closure as a Cinema, the Stalls were used for storage for many years and then later converted for Bingo use in 1969, and its Balcony was reconstructed for use as a Recording Studio, details of which can be found here.
Bingo ceased at the majestic in the early 1980s and the Theatre was converted for Nightclub use as 'Cinatra's' in 1985 and later Infernos Nightclub, which at the time of writing, in 2025, is still in operation at the former Theatre.
You may like to visit Infernos own Website here.
Some of the later information for this Theatre was gleaned from the excellent Cinema Treasures Website.
If you have any more information or images for this Theatre that you are willing to share please Contact me.
Memories of Clapham's Theatres and Cinemas by Alan Garner
A visitor to the site, Alan Garner, recently sent
along some interesting memories of the Clapham Grand and
other places of entertainment in the Clapham Junction and Battersea
area. Alan says:- 'In
response to your article on The Grand - I was born
in Clapham Junction in 1946, and lived there until 1967 when I married
and moved from the area.
Right - An Excerpt from a 1947 programme for the Clapham Grand whilst under Nat Tennens' Management.
In the 1950s, Clapham Junction was a great place to grow up in. The Granada Cinema stood at the top of St. Johns Hill and The Grand was situated on the right-hand side, going down towards Arding & Hobbs. It was always known as The Grand, even though the name had changed to The Essoldo Cinema. But even in the mid 1950s, I can remember my older sister taking me to see a Circus/Variety show there. As we queued up outside, I remember seeing an elephant being led up some steps through large double doors at the side-entrance in Severus Road.
The Manager of The Grand was always immaculately dressed. I can still visualise him standing in the foyer as we queued up to go in; a black dress suit with velvet lapels, white shirt and black bow tie. I believe he was a friend of Anthony Newley. Before Anthony Newley became a big star he was often seen talking with the manager at The Grand, and interestingly, the film that made him a star, Idol on Parade, was premiered at The Granada, Clapham Junction. Incidentally, when The Grand opened in 1900 it was originally called The New Grand. The New Grand was mainly financed by Dan Leno, the Music Hall star, who lived nearby in Clapham Park. Artistes who subsequently appeared at The Grand, included Marie Lloyd, Little Tich and Harry Tate.
A little further down St. Johns Hill on the same side, stood The Imperial Cinema, later known as The Ruby. This was much smaller in size than The Grand. The whole building was demolished about 30 years ago, and the present site is now occupied by a new Barclays Bank. The Imperial Cinema in St. Johns Hill originally opened as the Grand Hall of Varieties in 1894, but because of the competition from The Grand which opened in 1900, it was rarely used and was converted to a cinema in 1914 with 800 seats.
Turning
right at the bottom, takes you along St. Johns Road and into Northcote
Road. Just past the traffic lights on the left-hand side stood The Century
Cinema, formerly known as The Globe. I can vividly recall being taken
there in 1953 with a party from my school, Belleville Junior Boys, to
see a film of Edmund Hillary conquering Everest.
Left - The Grand, Clapham Junction in 2005 - Photo Courtesy Alan Garner & Richard Milsom.
I believe it was demolished later in the 60s or 70s in favour of a supermarket. The Century Cinema originally opened as The Bio Picture Palace in 1908, converted from a former assembly room. It changed to The Standard Electric Theatre in 1912, then The Bolingbroke Picture Hall, The Globe, and lastly The Century.
Going straight on at the bottom of St. John's Hill, takes you into Lavender Hill. About 200yds up on the left-hand side is an Asda supermarket. On this site in the mid 1950's stood the remains of the Pavilion Cinema which opened in 1916 and was destroyed by a V1 flying bomb in 1944. As a boy my friends and I used to play amongst the debris.

Above - Israel Davis's Pavilion Cinema at 33, High Street, Clapham was opened in November 1910 with seating for 1,000 people. The Cinema was closed in December 1940 during the Second World War but eventually reopened in 1942 and was in operation until 1958 when it was closed and demolished - Image From The Bioscope, 19th of November 1925.
I would point out that there is a popular misconception about Clapham Junction. When the railway station opened in 1863, it was called Clapham Junction because of the criminal reputation of the Battersea area. It was thought that by calling it Clapham it would give the station a more acceptable image. Clapham Junction is in fact in the heart of Battersea. Clapham lies further south. How times change. When I grew up there, Battersea was a working-class area. Its now a very up-market place the home of the rich and famous. Also, according to my memory, The Grand was never known as The Clapham Grand. It was just called The Grand (Clapham Junction, Battersea)
A
little further along Lavender Hill on the same side of the road, stood The Shakespeare Theatre which was also badly
bomb damaged during World War II. It stood to the left of the still
existing Battersea Town Hall, separated by Theatre Street. It is still
called Theatre street, and the current site of The
Shakespeare is now occupied by a modern office block called Shakespeare
House. It originally opened in 1896 mainly as a dramatic theatre. Ellen Terry, Lily Langtry and Sarah Bernhardt
performed there, amongst others. It was eventually converted to a cinema
in 1923. After the war, Battersea Council bought the bomb damaged site
and demolished it in 1957.
Right - An Excerpt from a 1947 programme for the Clapham Grand whilst under the Nat Tennens' Management.
The Washington Music Hall in York Road originally opened as The Royal Standard. It had nine name changes between 1886 and 1917, including The Washington Music Hall and The Palace of Varieties. It opened as a cinema in 1924 and was called The Super Palace.'
The above text was kindly sent in by Alan Garner with some factual details gleaned from Battersea Past by Patrick Loobey.
Some of the archive newspaper reports on this page were collated and kindly sent in for inclusion by B.F.



