The Majestic Theatre, 58 High Road, Woodford
Later - ABC / Cannon / Odeon
See also - The Majestic Theatre, High Wycombe - The Majestic Theatre, Wembley - The Majestic Theatre, Staines - The Majestic Theatre, Mitcham
Above - A Google StreetView Image showing the Odeon Cinema, Woodford, formerly the Majestic Theatre, in August 2020 - Click to Interact.
![]()
The former Majestic Theatre, today an Odeon Cinema, is situated on the High Road in Woodford and was the last of five Majestic Theatres built for the Majestic Theatres Corporation, Ltd., of 151, Great Portland Street, W.1., who built a chain of independent Theatres, all in the outer London Suburbs and the South East.
Right - The Majestic Theatre, Woodford when it first opened in November 1934 - From The Builder, 15th of February 1935.
The Woodford Majestic was opened on the 5th of November 1934 by Winston Churchill no less, and was designed by S. B. Pritlove with an Art Deco interior designed by W. E. Greenwood. The Theatre could seat 1,724 people in its two level auditorium, stalls and one circle, when it first opened. (N.B. There is a statue of Churchill on Woodford Green, not far from the Theatre, commemorating his role as the member for the parliamentary constituency of Woodford, see image below).
The Majestic Theatre was primarily built as a Cinema but did have a fully equipped stage and dressing rooms for artists, and a Compton Theatre Organ. FOH there was also a Restaurant and sprung floored Ballroom for 250 people, and outside was a car park for 400 cars. The Manager of the Theatre for its opening was Jack Barrasford, son of Thomas Barrasford, who would go on to create a musical stage show for the Theatre called "Hello Woodford" which he starred in and was accompanied by 35 local residents as performers.

Above - The Auditorium and Stage of the Majestic Theatre, Woodford when it first opened in November 1934 - From The Builder, 15th of February 1935.
The Kinematograph Weekly reported on the opening of the Theatre in their 8th of November 1934 edition saying:- 'The Majestic, Woodford, the opening of which on Monday night was attended by a brilliant gathering of political, social and trade personalities, is the fifth and most luxurious theatre of the Majestic chain of Kinemas sponsored by W. E. Greenwood.
In addition to Winston Churchill, the Member of Parliament for the division, who performed the opening ceremony, there were present Mrs. Winston Churchill, Randolph Churchill, Sir James Hawkey, J. P., C. C., chairman of the local council, who presided Mr. and Mrs. John Maxwell, Sir Arthur and Lady Holbrook, Sir Benjamin and Lady Drage, Colonel Baldwin Welsh, M.P.; Arthur Dent, Dodo Watts, William Freshman, etc.
Right - A Google StreetView Image showing the Bronze Sculpture of Sir Winston Churchill on Woodford Green in March 2018. The Statue was unveiled in October 1959 - Click to Interact.
Long before the programme began, every one of the 1,800 seats of the theatre were filled, the majority having booked several days ahead. There were many hundreds of disappointed would-be patrons turned away before the curtain rose upon the opening ceremony.
The proceedings were opened by Sir James Hawkey, who on behalf of the Woodford and Wanstead Urban District Council, wished the proprietors, the Majestic Theatre (Woodford) Ltd., all the very best of luck in their enterprise. He said that there was now no more need for Woodford people to travel to neighbouring districts for their entertainment, as the Majestic rivalled any West London Theatre.
Winston Churchill, in declaring the building opened, spoke very highly of the film trade.
"The Kinema," he said, "enables the many thousands of people who cannot regularly attend legitimate theatre to obtain education as well as entertainment in very luxurious surroundings." He wished the sponsors of the scheme very pleasing results.
Mr. Greenwood, replying, regretted that he could not offer Mr. Churchill a contract to appear at the Kinema regularly, as he had performed wonders in "pulling in the crowds." However, he was booking films which Mr. Churchill is now editing, and which he sincerely hoped would possess the same powers of attraction. Thanks were tendered to the contractors for the excellent way they had completed the building in the space of six months.
The interesting announcements were made that 85 percent of the staff employed were local residents, and also that on Saturday a special matinee would be held in aid of Lord Haig's Fund.
After the Kinema performance, which consisted of British Paramount News, a Walt Disney cartoon, "Building a Building"; "King Kong," a G.B.D. interest film; Archie Joyce and his band on the stage; and finally, "Cleopatra," a reception and supper was held in the spacious ballroom on the second floor. Archie Joyce and his band provided the music, and the proceedings were kept up until 1.30 am.
Jack Barrasford, who comes from the S. Bernstein circuit, is the resident manager, and is to be congratulated on the showman-ship with which his first show was put over. Mr. Barrasford, who comes from the famous stage family, has acquired a reputation as a live showman, and intends effecting extensive publicity campaigns for his future programmes.'
The above text in quotes was first published in the Kinematograph Weekly, 8th of November 1934.
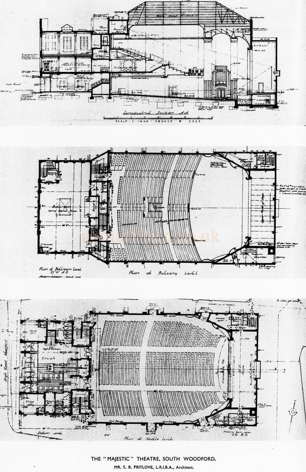
The Builder also reported on the new Majestic Theatre, Woodford, in their 15th of February 1935 edition, along with several images shown here, saying:- 'The main entrance to this new cinema is in High-road, South Woodford. There is also an entrance in George-lane and a wide exit for motor cars into George-lane. A car park provides accommodation for four hundred cars. The building is of steel frame construction. All the floors are of reinforced concrete, the balcony steppings being of reinforced concrete cast in situ.
Right - The Majestic Theatre, Woodford when it first opened in November 1934 - From The Builder, 15th of February 1935.
The balcony, seating 656 people, and the balcony foyer below, including cloakrooms and staff rooms, are mainly supported on one steel girder over 81 ft. long and 8 ft. deep. The projection room, which overhangs the rear of the balcony, is supported on a steel-framed lattice girder also over 81 ft. long and 11 ft. deep. The main elevation faces towards the Highroad and is set back 54 ft. from the roadway behind a broad green forecourt planted with trees and having a drive in for cars.
The front elevation is carried out in glazed cream coloured faience with black and red pilasters between the windows to cafe and ballroom, specially designed to incorporate "Neon" lighting. Over the entrance is a metal canopy finished in bright colours with panelled soffit brilliantly illuminated at night. The front of the canopy is prepared to receive illuminated lettering for the announcement of future films. On either side of the entrance are shops. Separate entrances are provided for the cafe and ballrooms. The remaining elevations are erected in Midhurst White bricks, with brown brick bases and string courses.
The crush hall is approached through an entrance vestibule lined with cream faience and paved with black and coloured tiles. This is entered through five pairs of wide, glazed, polished oak doors, and above the doors there is provision for the announcement of coming attractions.
Left - The Crush Hall of the Majestic Theatre, Woodford when it first opened in November 1934 - From The Builder, 15th of February 1935.
Entered off the crush hall, ample cloakroom accommodation is provided, and also at the cafe level. A wide central staircase leads up to the balcony and cafe; a short flight of four steps each side leads down to the two stalls entrances. On the left-hand side of crush hall a separate staircase gives access to the cafe and ballroom.
The auditorium provides seating for 1,724 people, the stalls alone accommodating 1,068. The balcony is entered from a spacious foyer, and has seating accommodation for 656 people.
A large elevated stage is provided upon which variety turns can be given. A soft lighting effect is obtained by troughs around the ceiling in front of the proscenium and around the main ceiling, and is augmented with laylights under the balcony. The walls are finished with a textural surface of peach colour relieved in beige and red; special decorative lines and effects in vermilion and black are continued throughout in the balcony front, carpets, curtains, etc.

Above - The Ballroom of the Majestic Theatre, Woodford when it first opened in November 1934 - From The Builder, 15th of February 1935.
The cafe is a large, well-lighted room with seating accommodation for over 150 people. A ballroom is provided above the café for the accommodation of over 250 people.

Above - S. B. Pritlove's Plans of the Majestic Theatre, Woodford - From The Builder, 15th of February 1935.
Mr. Basil Davis, A.M.I.E.E., was the consulting electrical engineer. Messrs. Greenham Demolition Co. Ltd., were responsible for demolition, and Messrs. L. and W. Whitehead, Ltd., were the building contractors. The following firms were also associated with the work:- Peirson and Co., Ltd., steelwork; The Strand Electric Co., Ltd., electrical work; Edgar Fitton and Co., Ltd., Manchester, heating and ventilation; Pixtons, Ltd., carpets, curtains and drapes; The County of London Electric Co., electric supply; F. Dejong and Co., Ltd., decorations; Clark and Fenn, Ltd., fibrous plaster; Garton and Thorne, Ltd., canopy and metalwork; Brilliant Neon, Ltd., "Neon" signs; James Clark and Son, Ltd., mirrors; J. R. Pearson (Birmingham), Ltd., radiator grilles and flower boxes; Falk, Stadelmann and Co., Ltd., electric light fittings; Hailwood and Ackroyd, Ltd., moulded glass leaves to cornices; Honey-will and Stein. Ltd., acoustic plaster; R.C.A. Photophone, Ltd., "talkie" apparatus; Diespeker and Co., Ltd., wall and floor tiling; Francis Morton, Junior, and Co., dance floor; Stevens and Adams, Ltd., oak flooring; Robert Adams, ironmongery; The Leeds Fireclay Co., Ltd., terra cotta ware; Roberts Adlard and Co., Ltd., roof tiling; Wotton and Son, West Croydon, glazings; W. James and Co., Ltd., metal windows; Mellowes and Co., Ltd., lantern lights; Arthur R. H. Maxted, Ltd., metal handrails, etc. ; The Bostwick Gate and Shutter Co., Ltd., collapsible gates; The Trussed Concrete Steel Co., Ltd., balcony construction and "Hyrib"; The Automatic Sprinkler Co., Ltd., hydrants and fire appliances; John Bolding and Sons, Ltd., sanitary fittings; J. C. Spooner and Son, Ltd., plumbing; Aldous and Campbell, Ltd., service lift; Kershaw Projector Co., "Kalee" projectors; F. Bradford and Co., Ltd., reinforced concrete steps, etc.; R. J. Goddard and Co., Ltd., asphalt; The Midhurst Brick Co., Ltd., white bricks; T. M. C. Harwell (Sales), Ltd., electric clocks; C. and R. Burrell. shop fronts. Mr. S. B. Pritlove, L.R.I. B. A., is the architect.
The above text in quotes was first published in The Builder, 15th of February 1935.
The Majestic Theatre had first opened on the the 5th of November 1934 but it was taken over by ABC in August 1935, like the Majestic Mitcham, and they would go on to run it for many years until it was closed for tripling in November 1972. It reopened the following February in 1973 with three screens seating 592, 201, and 133 respectively.
Right - A Google StreetView Image showing the side and rear elevations of the Odeon Cinema, Woodford, formerly the Majestic Theatre, in August 2020 - Click to Interact.
In 1986 it was renamed as a Cannon Cinema and further subdividing ensued so that today, as an Odeon Cinema, the former Majestic Theatre has seven screens with seating for 207, 158, 111, 153, 154, 92, and 144 respectively.
The Odeon Woodford is the only surviving Theatre of the five original Majestic Theatres built by the Majestic Theatres Corporation, Ltd., in the late 1920s and early 1930s.
Some of the later information for this Theatre was gleaned from the excellent Cinema Treasures Website.
If you have any more information or Images for this Theatre that you are willing to share please Contact me.
