Theatres in Sutton, Surrey (Today Greater London)
The Plaza Theatre / Granada Cinema - The Sutton Picture Theatre / Curzon Cinema - The Seacombe Theatre
The Granada Cinema, Carshalton Road, Sutton, Surrey (Today Greater London)
Formerly - The Plaza Theatre

Above - The Exterior and Main Entrance of the Plaza Theatre, Sutton when it first opened in the 1930s - From The Architects' Journal, 24th of January 1935.
![]()
The
Granada Cinema in Sutton, Surrey, that some people may still remember
today, was built for Lou Morris, and designed by the respected Theatre
Architect, Robert Cromie. The Theatre originally opened as the Plaza Theatre on the 8th of September,
1934 with the films 'Catherine the Great' and 'Oliver the Eighth'. Sutton
was in Surrey in those days but since 1965 it has been part of Greater
London.
Right - The Pay Box at the Plaza Theatre, Sutton when it first opened in the 1930s - From The Architects' Journal, 24th of January 1935.
The Plaza Theatre was built primarily as a cinema but also had a fully equipped stage and several dressing rooms, and although from the start it was home to all the major film releases, it was also often home to Pantomimes at Christmas. For more information on the Granada Chain's Pantomime history see here.
The Plaza Theatre's auditorium, with decorations by Mollo & Egan, was on two
levels and could accommodate some 2,390 people, and the Theatre had
its own Compton 3Manual/10Ranks organ with an illuminated console. There
was also a large cafe / ballroom over the foyer and a car park at the
rear of the Theatre.
Left - The Cafe and Orchestra Gallery of the Plaza Theatre, Sutton when it first opened in the 1930s - From The Architects' Journal, 24th of January 1935.
The Architects' Journal reported briefly on the Plaza, Sutton in their 24th of January 1935 edition, along with some of the images shown here, saying:- 'This cinema has a total seating capacity of 2,386: 1,637 in the stalls and 749 in the balcony.

Above - The Auditorium of the Plaza Theatre, Sutton when it first opened in the 1930s - From The Architects' Journal, 24th of January 1935.
Structurally the building is steel framed from the back of the stage to the junction of the proscenium splays and the auditorium walls. The balcony construction is a little unusual for theatres of this capacity, the lower balcony foyer, kitchen and staff rooms being suspended from 85ft. span girders about 8ft. deep.
At mezzanine level, over the main foyer, is a cafe with a seating capacity of 200 and extra floor space for dancing.
Right - The Organ Grilles of the Plaza Theatre, Sutton when it first opened in the 1930s - From The Architects' Journal, 24th of January 1935.
The auditorium colour scheme is pale rose, with horizontal chromium strips along the side walls and at the back of the balcony: on either side of the proscenium opening are the organ grilles.' - The Architects' Journal, 24th of January 1935.

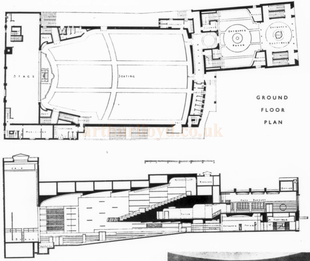
Above - Plans of the Plaza Theatre, Sutton - From The Architects' Journal, 24th of January 1935.
The Plaza Theatre had first opened on the 8th of September,
1934 and although it was built for Lou Morris, by the time of its its opening it had been
taken over by Granada Theatres Ltd, although it wouldn't actually be
renamed Granada until April 1942.
Right - The Exterior of the Granada Sutton, formerly the Plaza Theatre - From the 21st Anniversary edition of the Cinema Organ Society Journal 1973.
The Theatre suffered some bomb damage during the war and was closed for a month during September and October 1940. An application to convert the Theatre for Bingo in 1974 was refused and the Theatre then suffered a fire at its stage end and was closed for good after its final showing of 'The Wilby Conspiracy' and 'Mixed Company' on the 28th of August 1975.
The Granada was then demolished and an office building called Sutton Park House was erected in its place, an image of this can be seen below, although even this building has recently been replaced by a modern apartment Building.
I lived in Sutton myself in my formative years and remember regularly
visiting the Granada Cinema for Saturday morning kids matinees where
we would see cartoons, B Movies, and a main feature, supplemented by
goody bags which were usually not that interesting but great to be
received anyway, most of the contents being used as projectiles throughout
the programme.
Left - A Programme for the Granada, Sutton in 1955 - Click to see the whole programme.
I also used to visit the Cinema in the evenings when
I was older and still remember coming out of the Granada, Sutton having
seen 'West Side Story' with two of my sisters, and then singing the
songs and clicking our fingers to 'When you're a Jet' all the way home.
Right - A Google StreetView image of Sutton Park House in May 2012, which was built on the site of the former Plaza Theatre / Granada Cinema, Sutton - Click to Interact.
More information on the Plaza / Granada Theatre, Sutton from the 21st Anniversary edition of the Cinema Organ Society Journal of 1973 can be seen below.
Some of the later information for this Theatre was gleaned from the excellent Cinema Treasures website.
If you have any more information or images for this Theatre that you are willing to share please Contact me.
"The Wonder Theatre of Surrey" by lan R. McIver
From the 21st Anniversary edition of the Cinema Organ Society Journal 1973

Above - A Postcard showing several views of Sutton, Surrey, including the Plaza Theatre, later the Granada Cinema.
It is Saturday evening, 8th September, 1934. For seven months the town of Sutton has been echoing with the sounds of massive construction work. At the height of the golden age of the cult of the motion picture a new shrine dedicated to celluloid entertainment is about to be inaugurated.
Building work on the Plaza Theatre had started on 15th February, 1934, and from then until a few hours before the opening performance 450 workmen were kept busy turning a gargantuan shopping list into a cinema:-
1,495,000 bricks
32 fuseboards
262 electrical switches
¼ mile steel conduit
2 ¾ miles Wilton carpet
2 ¼ miles underfelt
1 ¼ miles moquette seat covering
5401bs tintacks
1,157 tons concrete
1,380 yds. canvas
1,750 electric lamps
5 tons cast iron counterweights
1,200 ashtrays
80Oft. rubber nosing
704 tons cement
16 tons iron seat stands
301 sq. yds. teak
1500 sq. yds. ashphalt
2,200 sq. yds. deal flooring (1)

Above - The Interior of the Granada Sutton, formerly the Plaza Theatre as originally built. The lighting was bright enough for Saturday evening patrons to check their football pools against the newspaper results while waiting for the programme to start - From the 21st Anniversary edition of the Cinema Organ Society Journal 1973
The cinema was designed inside and out by one of Britain's most famous theatre architects, Robert Cromie, and the building was the subject of much favourable comment in the architectural and "lay" press.
"Two-inch multicoloured facing bricks with artificial Portland stone dressing have been used, with most successful results. The secret of the charm of this elevation lies in the patterning of the stonework to the great central window feature against a broad unfretted field of brickwork. The extreme simplicity of the design enhances its effects and it is an elegant example of a stonedressed brick cinema facade." (2)
The interior also received praise and acclaim: " Here is an example in which the organ grille. proscenium and reflecting ceiling have been designed as an ensemble." (2) " Eugene Molle and Michael Egan, two brilliant designers who, although still in their twenties, have already won national acclaim, are responsible for the Plaza's interior decorations." (1) "The walls and ceiling have a golden granular surface, shaded in parts of the building with rose. The lighting of the auditorium is in amber and much of it is from lights concealed in the decorative scheme of the ceiling. There will be coloured lighting effects on the stage and the console of the Compton organ, the latest of its kind, will be illuminated in changing colours. Every seat is of the armchair type, and they are arranged so that everybody has a full view of the screen. . ." (3)
These, then, were the sights which greeted the first patrons on that Saturday night as they queued and waited for the show to begin. And what a show it was! "The band of the Scots Guards played the audience in and trumpeters, ranked on either side of the stage, heralded the start of the programme with a fanfare." (3) This was followed by "A Screen Novelty," the News in Sound, "The Private Life of Oliver the Eighth" (Laurel and Hardy) and an organ recital "Organs of Yesterday and Today." "The chief surprise in an evening packed full of novelty was the appearance at the organ or Leo Webber whose name is a household word in America and who mace a dash by liner and airplane to get there in time. His appearance that night was his first in England. He was given a wonderful ovation, encore alter encore being demanded." (3) After this excitement the audience settled down to enjoy the feature item "Catherine the Great, ' starring Elizabeth Bergner, Douglas Fairbanks Jnr., Flora Robson and Gerald du Maurier.
At the time of opening the admission prices ranged from 9d to 2/6d. The cinema was equipped with a cafe - "open daily from 10 a.m. to 10-30 p.m. Lunch, tea, dinner or supper - at prices to suit everybody."
The cinema was built for Lou Morris' circuit, and business was very brisk. During the theatre's second birthday week the following statistics were published:-
2,283,549 patrons admitted
7,481 miles of film shown
28,080 melodies played on the organ
1,185,577 units of electricity used
£10,316 paid in staff wages

Above - The Interior of the Granada Sutton, formerly the Plaza Theatre prior to its redecoration in the 1970s - From the 21st Anniversary edition of the Cinema Organ Society Journal 1973
From the week of October 10th, 1938 the familiar Granada figure appeared in the Plaza's advertisements, but it was not for some years that the theatre was renamed "Granada."
In August 1939, the manager of the Plaza, as did every cinema manager in the country, received a Home Office (A.R.P. Department) memorandum: For the Guidance of Owners and Occupiers of Places of Entertainment.
"In view of the great danger involved in the assembly of large numbers of persons in places where it is not feasible to provide adequate protection against the effect of bombs, it has been decided that during the initial stages of a war all theatres, music halls, cinemas and other places of entertainment shall be closed throughout the country. Owners and managers must accordingly be prepared, if an emergency arises, to close them down at short notice on receipt of instructions from the police . . ."
Thus,
when war was declared, all cinemas closed, and Plaza staff were put
to work as instructed in Head Office Memo No. 10 to spring-clean the
theatre. Fortunately, the closure was of short duration, as cinemas
in the Outer London ring were allowed to re-open on 9th September, 1939,
a programme was hastily prepared, and down came the "Sorry, we're
closed" notice on the canopy. Business then continued for about
a year, when it was abruptly terminated on "The Night the Bomb
Fell."
Right - The Compton 3/10 No. A 202 Organ Console in the Granada Sutton, formerly the Plaza Theatre - From the 21st Anniversary edition of the Cinema Organ Society Journal 1973
"On September 20th (1940), Granada, Sutton became the next casualty. The warning had been sounded before the end of the main feature, "It's a Date," and the audience had left with the exception of six people who were asleep in the back stalls and were allowed to stay. Foreman Charles Groves and Assistant foreman Andrews were on night-watch, and an A.R.P. fireman was dozing on a chair inside one of the padlocked side-exits. Andrews tells the story: 'I took cover and waited, and just as I got up an oil bomb hit us. It came through the roof, but hit a girder and exploded in the auditorium. All I could see was a sheet of flame up to the ceiling completely blocking out the stage. Apart from a loud crack, there was very little noise.'
"'The blast blew the front doors flat and bent the iron bars and padlocks like hairpins. The A.R.P. man found himself with a padlock and chain round his neck outside the cinema against the wall, with the exit doors closed behind him. The six customers just vanished into the night over the flattened front doors.'
"Andrews managed to couple a hydrant and extinguish the flames before the fire brigade arrived. As soon as he had put the flames out, he found himself in pitch darkness, for the bomb had severed the lighting circuit.
"The next day, while Chief Operator Nash and his staff were on the roof sorting out wires round the hole, Foreman Groves began chipping with a hammer at what he thought to be a piece of bomb-casing embedded in the theatre floor. An A.R.P. warden pronounced it to be an unexploded bomb, with somewhat precipitate effect on all concerned.
"The restaurant cleared itself in record time, so did the fire station and its married quarters, which adjoin the back of the theatre; the High Street was cordoned off and the "death or glory" squad was summoned. For thirty-six hours the centre of Sutton was deserted - but it was a false alarm, not a buried bomb, but the cap of the oil-bomb embedded in the concrete of the floor.
"This incident cost the Granada, Sutton, 350 new seats and a month's closure. Foreman Groves and Assistant Foreman Andrews, whose prompt action and sterling work had saved the theatre, both received inscribed cigarette cases and cheques from Head Office." (4)
The theatre re-opened on 21st October 1940 for "Business as usual" and all was then relatively quiet until the advent of the flying bombs in 1943, which brought at least one close shave:
"At Granada, Sutton, on the southern run in to London, Manager Thurburn counted as many as nine flying bombs in the air at the same time, and a total of 175 were logged passing within a quarter of a mile of the theatre. A strong wind would divert their course right over the theatre, and one morning Thurburn had to duck hurriedly on his roof when one cleared the stage end by 5 or 6 feet." (4)

Above - The Compton 3/10 No. A 202 Organ Console risen to stage level at the Granada Sutton, formerly the Plaza Theatre - From the 21st Anniversary edition of the Cinema Organ Society Journal 1973
Thus the theatre survived the hazards of war, but its future was again rendered uncertain by a road redevelopment scheme. A new road was planned to run right through the theatre site, and for some considerable time, while the scheme was being debated, little more than essential maintenance work was done on the building, which seemed doomed for demolition, and it began to assume a melancholy aspect. Fortunately, the road scheme was changed, and the theatre has been redecorated and improved so that it now looks very smart and well cared for.
The theatre originally seated 2500, but over the years the seats have been respaced for greater comfort, and just over 2000 Patrons can now be accommodated. With the present enthusiastic and imaginative management it is not uncommon for the house to be filled, even in these days, particularly for the regular stage shows for which the Granada is justly renowned.
The above article "The Wonder Theatre of Surrey" by lan R. McIver is from the 21st Anniversary edition of the Cinema Organ Society Journal December 1973.
References in the article:
1 . Plaza Cinema opening brochure.
2. "Modern Cinemas" - extracts from "Architects' Journal" London, 1936.
3. "Sutton and Cheam Advertiser" or "Sutton Times".
4. "Red Roses Every Night" Guy Morgan. Quality Press, London, 1948.
5. Interview - Florence de Jong/lan Melver - July, 1972.
6. "Church of England Newspaper- -16th November, 1934.
The above article on the Granada Cinema / Plaza Theatre, Sutton is from the 21st Anniversary edition of the Cinema Organ Society Journal 1973.
The Sutton Picture Theatre, 12 Cheam Road, Sutton, Surrey
Later - The Curzon Cinema / Studios 1,2,3 / Cannon Film Centre / Love2Love Nightclub / Legends / Kinetic / Wonderland

Above - A Sketch showing the exterior of the Sutton Picture Theatre in 1911 - From The Bioscope, 13th of July 1911.
The Sutton Picture Theatre was an early purpose built Cinema situated on the Cheam Road in Sutton just a short distance away from the much later Plaza Theatre of 1934.
Right - An Advertisement for the new Sutton Picture Theatre in 1911 - From the Mitcham Advertiser, 28th of July 1911.
The Picture Theatre was formerly opened on Saturday afternoon, the 24th of June 1911, with speeches by Harry J. Matthew, one of the Directors of the Sutton Urban District Council, and various other Dignitaries, and this was then followed by a showing of a film of King George V's Coronation processions, and then the films 'The Way of the Transgressors' and 'Trailed by an Indian' along with several comedy films. The Public Opening of the Cinema was on the evening of the same day followed by twice daily performances from then on.
The Sutton Picture Theatre could seat 650 people when it first opened in 1911 and was designed in the Neo-Classical Style by the architect H. Roberts. The Bioscope reported on the Picture Theatre in their 13th of July 1911 edition saying:- 'The new Sutton Picture Theatre, situate in the Cheam Road, was opened by the Chairman of the Sutton Urban Council, and has proved an instantaneous success. The building, as will be seen from the accompanying illustration, is of a handsome description, among the many special features being the stained glass windows in the tower, which are illuminated at night by arc lamps placed in the interior and the lounge. The latter extends the full length of the hall, and is decorated in old rose and oak. A delicately, executed frieze, illustrating scenes from Shakespeare's "Midsummer Night's Dream," and the use of rich velvet draperies at the entrance to the main hall complete a scheme of a high artistic character. The auditorium seats over 650 people, and is provided with nine exits, tip-up chairs, upholstered in blue velvet, being installed. The decorative scheme is in old oak, cream and blue, the carved ceiling being relieved in enriched fibrous plaster ribs and specially designed stencil ornaments. The entire construction of the building was carried out in the short space of seven weeks by Messrs. George Greenwood and Sons, of Halifax, from the designs of Mr. H. Roberts. - The Bioscope, 13th of July 1911.
Above - A Google StreetView Image showing Sutton's Love2Love Nightclub in September 2008, formerly the Sutton Picture Theatre, Curzon Cinema - Click to Interact.
The Sutton Picture Theatre had first opened on the 24th of June 1911 and was independently operated for many years. It was taken over by James Gardner in 1946 and in 1953 its name was changed to the Curzon Cinema. I grew up in Sutton and regularly used to go to both the Curzon and the Granada in the 60s and early 70s. The Granada was a palatial Cinema and was always exciting to go to but the Curzon was something of a Flea Pit by then and was a much poorer experience than the Granada.
In 1971 the Curzon was taken over by the Leeds based Star Cinemas chain and they closed it for tripling on the 27th of February that year. It reopened as Studios 1,2,3 on the 13th of June 1971. The Three small screens could seat 260, 120, and 120 respectively and I remember it being a step up from the former Curzon but I had never seen such small screens before. Despite the modernisation it was still a disappointment compared to the nearby Granada.
Right - A Google StreetView Image showing the site of the former Sutton Picture Theatre, Curzon Cinema, in April 2025 - Click to Interact.
In the 1980s the building was taken over by Classic Cinemas and then Cannon and renamed the Cannon Film Centre but they closed it in June 1992 and the building was then converted into a Nightclub which opened in 1994. The Nightclub had several different names over the following years; Love2Love, Legends, Kinetic, and finally in 2015 Wonderland which closed in March 2020 because of the Coronavirus Pandemic. The building was then sold for redevelopment and was demolished in 2023. At the time of writing in 2025 the site of the Theatre was still vacant.
Some of the later information for this Theatre was gleaned from the excellent Cinema Treasures website.
If you have any more information or images for this Theatre that you are willing to share please Contact me.
The Seacombe Theatre, 42 Cheam Road, Sutton, Surrey
Formerly - The Seacombe Centre
Above - A Google StreetView Image showing the Seacombe Theatre, Sutton in October 2014 - Click to Interact.
The former Seacombe Theatre is situated on Cheam Road in Sutton and first opened as the Seacombe Centre in 1983. The building itself is a former Church which was constructed in 1937. The name of the Theatre is a tribute to the much loved comedian and actor Harry Seacombe who lived in Cheam Road for more than 30 years, and who officially opened the Theatre.
When the Theatre opened it was run as a multi purpose venue playing host to conferences and community events as well as live theatre performances. The Theatre's auditorium had accommodation for up to around 400 people depending on whether the orchestra pit was in use or not. The Theatre's Stage was a flat floor with a proscenium arch and there were four dressing rooms and wardrobe facilities backstage. A glass extension to the building provided for a Bar and Refreshment area.
At the rear of the Theatre was a large Function Room which would later be converted into a Studio Theatre in 2015 with accommodation for around 120 people. This had its own Bar and could also be used as a Rehearsal Space for the main Theatre.
In 2015 the Theatre was taken over from the local Council, who had wanted to close it for budgetary reasons, by the Sutton Theatres Trust on a ten year lease but unfortunately it was not successful and the Theatre was closed in August 2016 when the Trust went into administration.
Since then the Theatre has been closed and unused and is currently under threat of demolition for the construction of new housing and retail outlets along with a new Civic Hub for Sutton with Council Services, a new Library, and Community Spaces which is projected to be completed by 2029.
Above - A Google StreetView Image showing the former Seacombe Theatre, Sutton in May 2025 - Click to Interact.
If you have any more information or images for this Theatre that you are willing to share please Contact me.


