Theatres in Streatham, London
The Streatham Hill Theatre - The Astoria Theatre / Odeon Cinema - The Gaumont Palace Theatre
The Streatham Hill Theatre, 110 Streatham Hill
Also known as the Streatham Hill Playhouse

Above - The Streatham Hill Theatre during the run of 'Can-Can' on the 10th of September 1956 - Courtesy Gerry Atkins.
![]()
Work
began on the building of the Streatham Hill Playhouse in 1928 and a
Tablet was laid to commemorate the fact by Miss Evelyn Laye on September
the 6th that year.
Right - The Tablet laid by Miss Evelyn Laye to commemorate the erection of the Streatham Hill Playhouse on the 6th of September 1928 - Photo Courtesy Mark Bennett.

Above - A Sketch showing the new Streatham Hill Theatre - From the Lewisham Borough News, 20th of November 1929.
Just over a year later the Theatre was finished. It was designed by the well known Theatre
Architect W. G. R. Sprague along with
W. H. Barton, and would in fact be Sprague's last Theatre to be built. The Streatham Hill Playhouse opened on the
18th November 1929 with a production of 'Wake Up and Dream' - See Opening Programme Right.
Right - The Opening Night Programme for the Streatham Hill Theatre - Courtesy Ron Knee Archive - Click for Full Programme.
The Stage Newspaper reported on the new
Theatre in their November the 21st 1929 edition saying:- 'The south
side of the River has the unfortunately derelict Surrey,
the Old Vic, once the Coburg,
and the Elephant and Castle,
which is under reconstruction; the Canterbury and the South London; also the Kennington and the Brixton, which are representatives
of a younger generation. But with the exception of kinemas and dance
halls the south side has had nothing new for many years. The Theatre
on Streatham Hill provides south side suburbs with a playhouse of which
they can be justly proud.
Left - The Foyer of the Streatham Hill Theatre in March 2017 - Courtesy Tim Hatcher and Roger Fox.
The intention of the management is to supply the public with the sort of attractions that have made the Hippodrome, Golders Green, a near relation to houses of the West End. Plays, musical comedies, revues, will be presented immediately prior to or after their West End runs.
The front of the theatre is dignified and imposing, the facade being supported by handsome white pillars in the Doric style, a style that is noticeable in many London theatres. The seating in the auditorium, for 3,000, is in three floors - stalls, circle, balcony, the two latter being approached by handsome roomy staircases. The seating itself has apparently been inspired by modern kinema construction, for it is roomy and comfortable...

Above - The Foyer of the Streatham Hill Theatre in March 2017 - Courtesy Tim Hatcher and Roger Fox.

Above - The Foyer of the Streatham Hill Theatre in March 2017 - Courtesy Tim Hatcher and Roger Fox.
...The
upholstery is in a warm brown. There are eight Private boxes. The roof
of the auditorium has a high glass dome 50 ft. in diameter, which is
flooded with light from its interior. All lighting in the front of the
house is on the concealed system. A feature is the rising and falling
orchestra pit, another idea from the kinema.
Right - The Auditorium Ceiling of the Streatham Hill Theatre in March 2017 - Courtesy Tim Hatcher and Roger Fox.
There are a fine entrance hall, foyers, and saloons. The numerous corridors are wide enough to do away with congestion. Comfort and a generous space are seen throughout the house, both in front and behind the curtain. The decorative scheme, which is as dignified as the exterior frontage, is in browns, old ivory, and gold...

Above - The Auditorium of the Streatham Hill Theatre in March 2017 - Courtesy Tim Hatcher and Roger Fox.

Above - The Auditorium of the Streatham Hill Theatre in March 2017 - Courtesy Tim Hatcher and Roger Fox.

Above - The Auditorium of the Streatham Hill Theatre in March 2017 - Courtesy Tim Hatcher and Roger Fox.

Above - The Auditorium of the Streatham Hill Theatre in March 2017 - Courtesy Tim Hatcher and Roger Fox.
...Behind the curtain we find everything that modern engineering and architectural skill can give for efficiency. The stage, fitted with the three traditional traps - two star and one grave - is 85 ft. wide, 50 ft. deep, and 60 ft. high to the grid (see images below). The actual proscenium opening is 40 ft. by 30 ft., which gives ample room for the clearing of any cloth...

Above - The Stage of the Streatham Hill Theatre in March 2017 - Courtesy Tim Hatcher and Roger Fox.

Above - A photograph showing the Tannoy Speakers situated above the proscenium of the Streatham Hill Theatre in March 2017 - Courtesy Roger Fox who says 'This is a very special find. Tannoy were a locally based company in West Norwood and it is believed that this system was installed to allow the Theatre Manager to address the audience. See how they are blended into the plasterwork.'

Above - The Pantomime Trap at the Streatham Hill Theatre in March 2017 - Courtesy Tim Hatcher and Roger Fox. Roger tells me that the Pantomime trap is still in full working order and that it is unusual in that there are no counterweights, nor any evidence that there has ever been any. The second trap is not roped and missing its platform, but the grave track is complete and has counterweights.

Above - The drums and shafts for the two stage bridges at the Streatham Hill Theatre in March 2017 - Courtesy Tim Hatcher and Roger Fox.

Above - A Stage Lift at the Streatham Hill Theatre in March 2017 - Courtesy Tim Hatcher and Roger Fox.
...Flys
are entirely done away with, all lines being worked from the stage -
a system seen on a much smaller scale at the little Arts
Theatre.
Right - The remains of the Flying Sytem on the Stage of the Streatham Hill Theatre in March 2017 - Courtesy Tim Hatcher and Roger Fox.
Particularly interesting is the switchboard, which occupies about half the space usually occupied by such apparatus in a first-class theatre. A copy of the one in the Roxy Theatre, New York, it is claimed to be the finest yet installed in any English theatre. It is possible, by means of a few small switches, set on a prearranged plan, to control the entire lighting of a production throughout its run.
Fireproof
curtain and act drop are also electrically controlled, and can be raised
or lowered by the pressing of a button. Mechanical contrivances also
make the shifting of the heaviest machinery an easy matter.
Left - The Stage Lantern Release Lever at the Streatham Hill Theatre in March 2017 - Courtesy Tim Hatcher and Roger Fox.
The management's desire for the comfort of artists as well as audience is evidenced in the dressing-rooms and their approaches. These are on four floors, and are fairly uniform. Each is thickly carpeted, neatly decorated, and provided with hot and cold water. Yellow glass in the windows gives the soothing effect of diffused sunlight. The theatre, which is under the same control as Golders Green, has Mr. J. C. Clavering as chairman and Mr. J. W. Parry as resident manager.
The opening attraction is "Wake Up and Dream," and among the bookings are the Co-Optimists, Mdme. Pavlova and company, Miss Sybil Thorndike in "Madame Plays Nap," and the Covent Garden Opera company. The architects are Mr. W. G. Sprague and Mr. W. H. Barton.'
The above text in quotes was first published in the Stage Newspaper, November 21st 1929.

Above - The Streatham Hill Theatre, from a F. Frith & Co. Ltd. Postcard dated 12th February 1954.
The
interior of the Streatham Hill Theatre, including the proscenium, was
altered in 1934 and the new auditorium boasted two large cantilevered
circles and a series of pretty curved fronted boxes on either side.
Right - The Streatham Hill Theatre, from a F. Frith & Co. Ltd. Postcard dated 12th February 1954.
On the 3rd July 1944 the Theatre was hit by a bomb which did considerable damage to the auditorium and part of the stage. One person was killed and several were injured. Nearby property was also damaged. There is a photo of the damaged auditorium shown below, and several other images of the damage can be seen on the Friends of Streatham Hill Theatre Website here and here.
Amazingly
the Theatre was then rebuilt to the original designs in 1950.
Left - The Auditorium of the Streatham Hill Theatre in March 2017 - Courtesy Tim Hatcher and Roger Fox.
Sadly despite the 1950 rebuild by 1962 its life as a live Theatre was over and the building was altered for Bingo use by Mecca Bingo. However, live performances did return to the Theatre for a while from July 2013 using small scale pop-up spaces in a site-specific promenade form with productions by the Streatham Theatre Company, although Bingo was still in operation in the Theatre as Beacon Bingo right up until January 2017 even that then ended and the Theatre went completely dark.

Above - Bomb Damage to the Streatham Hill Theatre in July 1944 - The Sphere, 30th of September 1944.
In May 2022 the Theatre was bought by the Ruach City Church who also own the former Gaumont State, Kilburn, their plans for the Streatham Hill Theatre are as yet unstated but I imagine they will be running it as a Church. The Theatre remains intact and readily convertible back to live theatre use and is one of the Country's greatest sleeping beauties. It has a massive stage which could take most touring musicals. Despite the fact that there is a campaign running at the moment by The Friends of Streatham Hill Theatre whose mission is to to see the theatre returned to arts, culture and performance use, it's new owners, who did some good restoration work on the Gaumont, Kilburn, probably have other plans for the Theatre.
You may like to visit the Friends of Streatham Hill Theatre Website here.

Above - The rear and side elevations of the Streatham Hill Theatre on the corner of Barrhill Road and Blairderry Road in July 2008 - Photo M.L.
The Streatham Hill Theatre - A Retrospective
From a programme for the Theatre dated 13th January 1936

Above - The Streatham Hill Theatre in 2008 - Photo M.L.
Looking
back over 1935, the management of this theatre reviews with a pride
which is surely justifiable, the great variety of first class attractions
it has been possible to present to their patrons.
By adhering to the policy of securing West End successes with West End casts, and, on occasion, sponsoring first productions of plays which could be considered sufficiently important to warrant it, they have been able to provide theatrical fare of the very best, to suit every taste, from Shakespearean tragedy to musical comedy. During the past twelve months, nearly every star of theatreland has visited this theatre.
Here
is a list selected at random from the file of programmes during 1935:
Marie Tempest, who celebrated her fifty years' Jubilee on the stage;
Jack Buchanan and Elsie Randolph, who also open up the 1936 season;
Ivor Novello, appearing in his own plays; Lilian Braithwaite, Owen Nares,
Fay Compton, Edna Best, Gladys Cooper, Raymond Massey, George Robey,
Alice Delysia, Leslie Henson, Lupino Lane, George Graves, Laddie Cliff,
Renee Houston, Binnie Hale, Edith Evans, John Gielgud, Marion Lorne,
Gordon Harker, Godfrey Tearle, Marie Ney, Joseph Hislop, Irene Vanbrugh,
Dorothy Dickson, Arthur Riscoe, Charlotte Greenwood, Hermione Baddeley,
Flora Robson, Jeanne de Casalis and Vivian Leigh, the most glamorous
newly discovered star of 1935.
Above - A Selection of 1950s / 60s Programme Covers for the Streatham Hill Theatre - Courtesy Martin Clark.

Of
the productions which brought these brilliant personalities to this
theatre, may be mentioned such musical comedies as "Mr.
Whittington," "Yes, Madam?" and "Gay Deceivers";
such representatives of historical drama as "Clive of India"
and "Viceroy Sarah"; examples of dramatic comedy in "Theatre
Royal" and "Murder in Mayfair." J. B. Priestley supplied
that fine play Eden End," and Gertrude Jennings her inimitable
"Family Affairs."
Right - A Programme for 'This'll Make You Whistle' at the Streatham Hill Theatre - 13th January 1936
The classics were represented by John Gielgud's production of "Hamlet," unanimously acclaimed as unparalleled in our time. Sophisticated comedy found a place in "The Greeks had a Word for It," and the delightful "Mask of Virtue," and it was possible to secure for Streatham Hill Theatre the spectacular revues "Streamline" and "Stop Press," and the gigantic production of "Glamorous Night" from Drury Lane Theatre. Three productions which were first staged at this theatre "Twenty to One," "Vicky" and "Mary Tudor" were successfully launched in the West End.

The
year, which was brought to such a happy conclusion with the first presentation
of Jack Buchanan's new musical comedy, has convinced the management
that the policy they have adopted is the most satisfactory for their
patrons, and they trust that by continuing to give such support as that
they have received throughout the past twelve months-for which they
thank you-you will enable them to carry it out with equal success this
year.
Right - A Programm for 'Ruth Draper' at the Streatham Hill Theatre May 8th 1933.
No other theatre has been able to offer its patrons so comprehensive a range of theatrical entertainment, and it is intended to extend this range still further in the next presentation, when Mr. Jack Buchanan leads the D'Oyly Carte Opera Company, in a Gilbert and Sullivan repertoire.
The above 'Retrospective' is from a programme for the Streatham Hill Theatre dated the 13th of January 1936.
If you have any more information or images for this Theatre that you are willing to share please Contact me.
The Astoria Theatre, 47-49 Streatham High Road, Streatham
Later - The Odeon Cinema

Above - The former Astoria Theatre, Streatham, now the Odeon, in a photograph take in July 2008 - Photo M.L.
The Odeon, Streatham as it is known today was originally built as a vast Super
Cinema with a single giant screen and a very large stage, it was designed by Edward Albert Stone and originally opened as the Astoria Theatre
on the 30th of June 1930 with the Film 'Paris' along with a huge Variety show, see the full opening programme here.
Right - The Opening Programme for the Streatham Astoria - Courtesy Ron Knee Archive - Click to see the entire programme.
The Theatre was the third of four Astoria Theatres to be built in London
for the independent film exhibitor, Arthur Segal, the first of which
was the Astoria, Brixton, Segal then
went on to build the Astoria,
Old Kent Road, which has since been demolished; the Astoria in Streatham
which is now an Odeon Cinema; and the Finsbury
Park Astoria, which has since been converted into a church. Stone
also designed the former Astoria
Theatre in Charing Cross Road and the Astoria,
Brighton.
Left - Independent film exhibitor, Arthur Segal - From the Opening Programme for the Streatham Astoria - Courtesy Ron Knee Archive.
The exterior of this Astoria was in the modern style but the auditorium, which could seat some 2,614 people in comfort, was in an Egyptian style, although the ceiling was partly in the Atmospheric style, like the three other London Astorias by Segal. The Streatham Astoria interior was designed by Marc-Henri & G. Laverdet who also designed the other three auditoria as well.
The Theatre had a fully equipped Stage and Fly Tower, ample Dressing Rooms, a cafe, also in the Egyptian Style above the main entrance, and was fitted with a Compton 3 Manual 12 Rank theatre organ, which was inaugurated by Al Bollington at the Theatre's Opening.

Above - A Full Page Advertisement for the Opening of the Streatham Astoria - From the Croydon Times, 28th of June 1930.

Above - The Astoria Theatre, Streatham when it first opened in 1930 - From The Bioscope, 4th of June 1930.
The Bioscope reported on the soon to be opened Astoria in their 18th of June 1930 edition saying:- 'The new Streatham Astoria is scheduled to open on June 30th, as the third in a chain of palatial suburban super cinemas. We are now able to publish more complete details of this striking theatre, which has been designed by E. A. Stone, F.S.I., on original though dignified lines. An early reference to the cinema was published in The Bioscope on May 28th.
Right - An Image showing the soon to be opened Streatham Astoria - From the Streatham News, 16th of May 1930.
The theatre is approached by a wide carriage drive, which is claimed to be unique in modern theatre construction. This has been provided in order to allow for the setting down and taking up of car passengers without interfering with the main road traffic. Ample parking space has also been provided at the side of the theatre.

Above - The Auditorium of the Streatham Astoria showing the elaborate backlit ceiling - From the Bioscope, 2nd July 1930.
The Astoria, which has been designed in keeping with the architecture of the surrounding district, is based on traditional lines. The front and side elevations are treated in white stone and multi-coloured brickwork, the result being both pleasing and very effective. Four huge columns above the main entrance, which support the roof, are outstanding features of the front elevation, whilst tiles and louvres give deft touches of colour to the impressive frontage.
Right - The Streatham Astoria's Canopy lit up at night - From the Kinematograph Weekly, 14th of August 1930.
The entrance hall is long and rectangular in shape, its longer walls broken on one side by doors from the street and on the other side by doors to the stalls. This hall is chiefly remarkable for its boldly coved and heavily flute silver cornice, resting on grooved pilasters, with black, green anti silver modernised caps.
Left - The Entrance Hall of the Astoria Theatre, Streatham when it first opened in 1930 - From The Architect's Journal, 9th of July 1930.
The wall surfaces are of pale biscuit colour, streaked vertically with green and silver in plastic paint texture, conventional leaf and flower compositions in the same material crowning the doorways. Dull toned mosaic rubber flooring repeats the wall colour.

Above - The Tea Lounge at the Streatham Astoria - From the Bioscope, 2nd July 1930.
Staircases lead to the foyer through openings in the shorter walls at both ends of the hall, with lighted and glazed fountains on the half landings, enclosed by metal grills set between square pillars of silver mosaic. The metal work of the balusters and the radiator grilles is finished in silver.
Right - The Foyer of the Astoria Theatre, Streatham when it first opened in 1930 - From The Architect's Journal, 9th of July 1930.
The Foyer has as its main decorative feature a semi-vaulted ceiling and an elaborate open plaster frieze, supported by square piers with lotus caps. The walls are of a rich red tint, the frieze being picked out in contrasting shades of green, gold and black. The lighting is concealed in a fluted architrave, and in both entrance hall and foyer the main lighting is by means of a modern and original design. The ceiling is of gold.
In no other theatre in London can there be found such unique decoration as that designed for the Ladies' rest room at the Streatham Astoria. The walls are cream in colour, the lighting soft and restful, this effect being obtained by means of a triple-coned cornice and ornamental glass shades unique in design. A coloured relief mural decoration of an Egyptian female figure bathing in a lotus-filled pool, forms the background of a specially designed lounge-settee. The panel is the main feature of the decoration and is noteworthy on account of its base, which is composed of a glass panel so constructed as to give the effect of rippling water.
The dressing tables have been specially designed, each being fitted with a glass top, illuminated from beneath, thus giving direct and satisfactory lighting.

Above - The Auditorium of the Astoria Theatre, Streatham when it first opened in 1930 - From The Architect's Journal, 9th of July 1930.
In direct contrast to the cool decorative scheme of the entrance hall and foyer is the daring Egyptian decorative scheme of the auditorium, in which the brilliant colourings of that country have been introduced. The predominant colour is pure vermilion, while the mouldings and embellishments have been carried out in black and gold.
Right - The Auditorium of the Astoria Theatre, Streatham when it first opened in 1930 - From The Bioscope, 4th of June 1930.
The hanging ceiling provides one of the most novel and striking effects secured in the theatre. It is composed of an elaborate trellage, hanging 2ft. below the main ceiling, which is plain, and reflects the multi-coloured lightning introduced between the two ceilings. The hanging ceiling is supported between two decorative arches, one at the proscenium end and the other at the balcony end of the theatre. The remainder of the balcony has a flat stepped ceiling covered entirely with narrow reeding.
The flank walls of the balcony are divided into three distinct panels, which have been made the case of what is claimed to be two of the most remarkable mural decorations ever introduced into a theatre. Each wall depicts a distant tableau from ancient Egyptian history, the colouring being most strikingly vivid, even the helmets and spears of the ancient warriors being reproduced in gold and silver leaf.


Above - The Egyptian Decoration in the Balcony of the Astoria Theatre, Streatham when it first opened in 1930 - From The Bioscope, 4th of June 1930.
The proscenium opening, which is unusually large, is framed by a broad covered architrave, fitted for concealed lighting, surmounted by an open red, black and gilt trellage in the semi-dome style. Tableau curtains of gold, trimmed with bright aluminium plates, give a metallic finish. The large safety curtain is also in keeping with the Egyptian note of the auditorium and is decorated to resemble a gigantic piece of Egyptian tapestry.
To counteract the effect of such an abundance of rich colour, the seating is effected in green satin brocade, every seat throughout the house being of one luxurious and comfortable style. The whole of the decorative scheme was carried out by Marc-Henri & Laverdet, the decorative artists, who were also responsible for the decorative scheme of the Brixton Astoria.

Above - The Auditorium and Stage Safety Curtain of the Astoria Theatre, Streatham when it first opened in 1930 - From The Bioscope, 25th of June 1930.
The huge stage is equipped for the presentation of any kind of entertainment, from grand opera downwards. A full-sized orchestra pit has been introduced, where a large orchestra will be a feature of the programme. Ample dressing rooms, band rooms etc., are also introduced below the stage. The whole of the stage section is fitted with an automatic sprinkler system.
Right - An Advertisement for Compton Theatre Organs as Installed at the Astoria Theatre, Stretaham in 1930 - From the Kinematograph Weekly, 10th of July 1930.
The Organ is a Compton, of the most complete and luxurious type. Its construction was commenced by the John Compton Organ Company some six months ago, and its erection occupied several weeks. The patron sees nothing beyond two large three-manual consoles, situated in the orchestra pit and the stage respectively.
The main portion of the organ occupies three large rooms (the size of a small house) over the proscenium arch. These rooms extend the full width of the theatre and the sounds enter the theatre through a specially designed resonance chamber and grille over the proscenium. The first room contains the the electrically driven blower and generator for the mechanism. The second carries a portion of the soundboards, pipes and special mechanism, the remainder being located in the chamber.
The Pipes, of which there are a great many, are of all sizes and shapes, some being as large as chimney stacks, others as slender as straws. The vox humana, or human voice, has 73 pipes. Their sounds proceed from a "mouth" in the upper end of the Pipe, and at the lower end there is a vibrating device, closely resembling the human larynx and serving a very similar purpose. The most popular stop of all - the tibia - is generally used in conjunction with a tremulant, which imparts to it an appealing tone most valuable in music of an emotional type.
Left - Images of the Astoria Theatre, Streatham in 1930 - From the Kinematograph Weekly, 3rd of July 1930.
Other tonal effects include the diapason, diaphone, string and reed tones, for which the Compton organs are famous, whilst the percussion department contains a lovely chrysoglott, a xylophone, glockenspiel and fine overstrung piano; a set of 20 cathedral chimes, a carillon exclusive to the Compton organ, besides all the characteristic effects of a symphony orchestra such as bass and snare drums, tom-tom, castanets, tambourines, Chinese block, sleigh bells, cymbal and triangle.
The mechanism is of Compton design and manufacture throughout, and is instantly sensitive to every possible demand. There are some 12,000 sterling silver contacts in this mechanism, and approximately 60 miles of insulated wire has been used in the manufacture and connections of the various parts.

Above - The Projection Room of the Streatham Astoria - From the Bioscope, 2nd July 1930.
Every attention has been paid to the projection room, which is equipped with the very Latest equipment. This includes two model M simplex projectors, fitted with Hall & Connolly High Intensity Arcs, two Western Electric Outfits, one Brenograph Effects Projector and two Brenkert Super Spots.
Right - The Fan Room at the Streatham Astoria - From the Bioscope, 9th of July 1930.
A set of Western Electrical Operator Speedometers which give the speed of any or all projections, are installed, one of these also being fitted at the M.D.'s rostrum. Ample workshops, battery rooms, etc., lie adjacent. The whole of the projection chamber equipment was carried out by J. Frank Brockliss, Ltd.
The theatre contains one of the largest heating and ventilating systems in the country, capable of dealing with over 3,000,000 cubic ft. of air per hour.

Above - The Air Conditioning Equipment at the Astoria Theatre, Streatham in 1930 - From the Kinematograph Weekly, 14th of August 1930.
A charmingly appointed foyer tea lounge is situated over the entrance hall. The decorative scheme, which is of a dull red flooded by concealed lighting, give an air of cosiness which is enhanced by the semi-vaulted ceiling of gold, supported by square piers with lotus caps. The furnishing of the lounge has been carried out in the popular Lloyd Loom units.


Above - A. E. Stone's Sectional Drawing and Stalls and Balcony Plans of the Astoria Theatre, Streatham - From the Kinematograph Weekly, 14th of August 1930.
The general contractors for the Streatham Astoria were Griggs & Son, and a list of subcontractors was published in the Bioscope on May 28th.'
The above text in quotes was first published in The Bioscope, 18th of June 1930.

Above - The Astoria Theatre, Streatham when it first opened in 1930 - From The Architect's Journal, 9th of July 1930.
Not long after it opened the Theatre was taken over by Paramount Pictures
in December 1930, and just like the Finsbury
Park Astoria, was taken over by Oscar Deutsch's Odeon Theatres Ltd
in November 1939.
On the 2nd of September 1961, whilst under the ownership of the Rank Organisation, the Astoria was closed after the final showing of the Films 'Information Received,' and aptly 'The Last Sunset.' The Theatre was then subsequently modernised. This consisted of removing most of the original interior, although the auditorium ceiling was left in place.
Right - A Corridor in the Foyer - From the Opening Programme for the Streatham Astoria - Courtesy Ron Knee Archive.
The Theatre was then reopened on the 18th of September 1961 as the Odeon, Streatham, a name it retains to this day. The opening Film was 'No, My Darling Daughter' with Juliet Mills who was in attendance for the screening. The Theatre then continued as a Cinema with occasional stage use including Ballet, Pantomimes and Concerts right up until the final live performance there in December 1978 with a concert by Ian Drury.
In 1979 the Theatre closed down so that it could be tripled with a large screen in the former balcony for 1,095, and two smaller screens in the former rear stalls area which each held 267. In 1983 the original safety curtain for the Theatre was lowered for the last time and a new screen was built in front of it for the number 1 Cinema. The following year this main Cinema was later reduced in size again by installing a new screen where the old Balcony front used to be.
In 1991 a fourth Cinema was installed in the former front Stalls of the Theatre, seating 240 and then a fifth screen was built into the original stage of the Theatre seating 196.
In 2001 refurbishment work on the building was carried out and yet another two small Cinemas were installed in the building by fitting one into the former rear of the Circle and by splitting the front Stalls Cinema into two so that currently the Streatham Odeon has 8 screens. Sadly very little of the original interior remains of this once vast Theatre which is now in use as a modern multiplex Cinema complex.
Above - A Google StreetView Image showing the Odeon, Streatham in November 2020, formerly the Astoria Theatre - Click to Interact.
For more images and information for the Streatham Astoria see the Opening Programme for the Theatre here.
If you have any more information or images for this Theatre that you are willing to share please Contact me.
The Gaumont Palace Theatre, 142 Streatham Hill, London
Later - the Streatham Bowl and Laser Drome

Above - The Architect's Sketch of the Gaumont Palace Theatre, Streatham Hill - From The Bioscope, 24th of February 1932.
The Gaumont Palace Theatre was situated on Streatham Hill in London and first opened on Monday the 14th of March 1932 with the Films 'Michael and Mary' and 'The Brat' along with Jack Hart and His Band live on the Theatre's large and fully equipped stage.
The Theatre was designed for Film presentations and Orchestral Performances, along with Variety Shows should the need arise, and could seat 2,381 people in its Art Deco Auditorium which had a Proscenium opening of 57 feet with a Stage depth of 35 feet, and a large Orchestra Pit in front.
There were six dressing rooms for artists, and a Compton Theatre Organ, played by Leslie James on the Theatre's opening. The Theatre also had a large Tea Lounge on the Balcony Level. The Theatre was designed by Charles Nicholas and J. E. Dixon-Spain.
Right - An amusing article on the Film 'Sunshine Susie' whilst playing at the Gaumont Palace Theatre, Streatham Hill to great success shortly after the Theatre had opened in 1932 - From the Norwood News, 29th of April 1932.
The Kinematograph Weekly reported on the opening of the Gaumont Palace in their 17th of March 1932 edition saying:- 'Quickly following on the opening of the Gaumont Palace, Peckham, on February 8, came the opening on Monday last of the second London G.B. house, the Gaumont Palace, Streatham Hill.
Simple Dignity
The Streatham house makes a definite attempt to eschew garishness and startling novelty in kinema architecture, and Nicholas and Dixon-Spain, F.F.R.I.B.A., are to be congratulated on achieving their objective.
An Imposing Frontage
A feature of the exterior which will no doubt excite much comment is the provision of a broad, high-ceilinged terrace running the whole width above the entrance hall. Fronted by two pairs of pillars carrying the canopy high above, this terrace, as seen from the street, has a fine palatial effect, three stone pedimented doorways, with glass doors which give entrance to the terrace from the rear being finely conceived and giving grace to the whole.
Terrace Decoration
The decoration of the back wall is carried out in a mass of diagonal cube decorations in two shades of blue and silver, metal pilasters breaking the design at intervals. Above, the ceiling has a design in blue squares, with a central gold sun in each. As this terrace leads off from the tearoom, which will be described later, it is likely to be a favourite place upon which to take tea during the summer months.

Above - The Mayor of Wandsworth and other Dignitaries at the Opening of the Gaumont Palace Theatre, Streatham Hill in 1932 - From the Norwood News, 18th of March 1932.
Exterior as a Whole
The terrace is flanked on each side by brickwork relieved by windows, and an electric sign on each side is to carry the title of the stage feature and the film to be screened. A large Neon sign, with the name of the theatre, is set at the top of the front, and a further vertical sign in red bulb lights on the return wall in Ardwell Street is visible for some distance along the main roadway.
Access to the entrance hall is by glass doors set at intervals along the 60 ft. frontage. The entrance hall itself is 60 ft. long by 34 ft. broad, and is lighted from above by three modern glass fittings, square in shape, which enrich the light with a soft yellow tint.
Door frames and doors are of a brilliant red, and the general tone is cream, with marble facings around. The patterned floor is in terrazzo, reddish brown and grey in colour. Two open payboxes, fitted with Automatickets, are on each side of the central staircase to the circle.
A view of the Streatham Hill front, taken on the opening day. It is in red brick and stone. The loggia is floodlit at night and contains some brilliant coloured wall tiling, after the manner of the Capella Colleoni in S. Maria Maggiore at Bergamo.
In the entrance hall, looking towards the staircase up to the cafe and circle, on either side of which are doors to the stalls. The walls are lined with Travertine, and the floor is of marble. The main stairs have Sienna terrazzo treads and black marble risers.
The café on the first floor has a dado of dark grey, a dado rail in black, blue and silver, walls of silver grey, and a ceiling in cream. The metalwork is silver colour, and the furniture is of wood, coloured blue, and cane.
The decoration of the auditorium is executed with extreme delicacy and, though possessing features of marked individual interest, has been specially designed to lead the eye to the proscenium and stage.
Above - Some Images of the Gaumont Palace Theatre, Streatham when it first opened in 1932 - From The Architect's Journal, 23rd of March 1932.
The Stalls Foyer
The foyer is entered on the extreme right and left by handsome doors of sycamore and walnut veneer (which, by the way, are repeated throughout the theatre), a descent of three steps leading to this apartment, which is 70 ft. by 22 ft., and is carpeted with the familiar G.B. monogrammed carpet in red and green. It is furnished with Lloyd Loom tables, chairs and settees, and an alcove under the entrance hall stairway relieves the squareness of the foyer itself. A Grecian key pattern in blue and silver is an attractive wall decoration.
Modernist Note in Auditorium
Upon entering the auditorium one is struck at first by the lack of circle overhang, the front of the circle projecting only a few feet beyond. This is due, of course, to the circle being carried back over the foyer. The auditorium impresses at once by its size, and by the treatment of the ceiling which is in three ranges of irregular covelit heptagons, with a central ceiling rayed and having a central glass light composed of five squares of 25 panes each, with surrounding panes to fill the design.
Right - The Auditorium and Stage of the Gaumont Palace Theatre, Streatham Hill when it first opened in 1932 - From the Kinematograph Weekly, 17th of March 1932.
This feature will enable the house to be flooded with natural light for cleaning purposes during the daytime. The general impression when all lights are on is that of a sunburst. Seating to the number of 1,460 in the auditorium, supplied by W. W. Turner and Co., is in rose du Barry, and there has been no skimping of knee room, ample allowance having been made for even the largest limbed.
Special Features
The special features of the interior are so numerous that it is almost impossible to gather them on one visit. The general colouring is that of sunshine, and this is carried out even in the safety lighting which is set on the under rim of the balcony, and is both decorative and utilitarian.
A remarkably deep blue is the base colour all round the walls. Walls are mainly cream, with flutings in gold and blue in pilaster form beneath niches in which are beautiful ivory carvings, which are floodlit from above.
Left - A Drawing from a pencil sketch of one of the carved ivory subjects which adorned the walls of the Gaumont Palace Theatre, Streatham Hill when it first opened in 1932 - From the Kinematograph Weekly, 17th of March 1932.
These carvings are the work of Vernon Hill, and are mainly nude female figures symbolical of the inherent spirit in trees.
Two smaller carvings above the balcony are of figures clashing cymbals, and these are carried on a small platform supported by four spirals of dull red.
A Massive Proscenium
The proscenium opening is a massive gold frame, 59 ft. 6 in. by 35 ft. 6 in., and above it are five gold bowls, in which are floodlights illuminating a ceiling grille, upon which are flat cream surfaces carrying a gold design of goats. In front of the stage is a capacious orchestra pit with a low wall, so that musicians will be practically always in sight. The gilt console of the Gaumont super organ, constructed by Comptons, to the specification of Mr. Grimshaw, who is G.B.'s musical chief, is on a rising platform, and the organ chamber is below stage with ducts on each side centre.
The stage depth is 34 ft. 9 in., and picture screen size 30 ft. by 46 ft. Horns and screen will be flown during stage acts. Three sets of battens and a special flood batten and footlights make up the stage lighting, the board being set up high on the right. Curtain control is from the operating-box, where are push buttons before every machine to facilitate operation.
Balcony Accommodation
Access to the balcony is by means of a central staircase from the entrance hall. This is divided into two, and gives approach to the balcony lounge on either side. Seating is for 997, and is upholstered in blue. Ample exits are to be found at the top rear of the balcony. The ceiling above is decorated with two designs of square cabinet shape, and safety lights are incorporated in the wall.
Right - The Auditorium of the Gaumont Palace Theatre, Streatham Hill when it first opened in 1932 - From The Architects' Journal, 23rd of March 1932.
The Tea Lounge
The tea room at balcony level is a spacious apartment, its walls decorated in blue, black and gold, and furnished with chairs and tables in which bright blue is predominant. A large, white, tiled and enamelled kitchen and pantry is filled with the latest cooking devices, and a double doorway for entrance and exit facilitates quick service. On a floor above are the rooms for male and female staff and a rest room for operators adjacent to the projection rooms.
Projection-Box
As is now the rule in all houses of super nuality, especially those of the Gaumont British group, the projection-room is a model of spaciousness and good lay-out. Three Gaumont projectors and two spots make up the actual projecting machines, with trunking to carry off fumes, scientifically fitted. A device to act quickly in case of fire is that of a metal link with low melting point, which, in case of fire, releases a wire and closes all apertures.
Left - An Advertisement for British Acoustic Projectors as fitted at the Gaumont Palace Theatre, Streatham Hill for its opening in 1932 - From the Era, 16th of March 1932.
Heating and Ventilating
The heating and ventilating plant, contracted for by J. Jeffreys and Co., Waterloo Road, S. E.1. has been designed on the most modern lines, air being admitted through a continuous grille round the auditorium at stalls level, and gratings at the rear of the balcony, and exhausted through a large grating over the proscenium. Fresh air is drawn into the building by means of a large centrifugal type fan. The heaters and the various radiators are supplied with heat from two oil-fired boilers, the temperature of which is maintained at a constant figure by means of automatic control devices. Approximately 50 h.p. is required to drive the various fans, pumps, etc., and 120 tons of fresh air is admitted to the auditorium every hour.

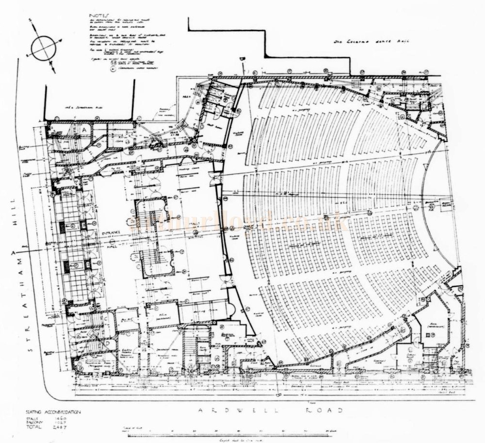
Above - A Plan of the Gaumont Palace Theatre, Streatham Hill - From The Architects' Journal, 23rd of March 1932.
Policy
The stage is ample for all classes of theatrical and vaudeville presentations, while the proscenium is designed to frame the "effects" now so essential in modern houses. At the moment it is proposed to feature stage bands and organ recitals as distinct from kine-variety programmes. An inter-change of orchestras will be made with other houses on the circuit.
Electric light fittings were supplied by F. H. Pride, 52, Gt. Marlborough Street, W.1, and decoration was executed by Clark and Fenn, Charlotte Place. S.W.4. W. J. Furse and Co., Ltd., 9, Carteret Street, S.W.1, carried out the lightning protection.'
The above article in quotes was first published in the Kinematograph Weekly, 17th of March 1932.

Above - A Drawing depicting the Gaumont Palace Theatre, Streatham Hill when it first opened in 1932 - From the Kinematograph Weekly, 17th of March 1932.
The Gaumont Palace Theatre, Streatham Hill had first opened on the 14th of March 1932 and went on to have a successful decade in operation but it was hit by a German bomb during the war in July 1944 which put it out of operation. It was later converted for factory use for a decade, but in 1955 it was reconstructed to the designs of T. P. Bennett & Son and reopened as a Cinema, with the same Gaumont Palace name, and with a reduced seating capacity of 1,873, on the 18th of July 1955, with the Film 'Doctor at Sea'.
Cinema use went on for a few years but it was closed again on the 25th of March 1961 and then converted into a Bowling Alley by Top Rank Bowling called the Streatham Bowl which had a star studded opening led by Bruce Forsyth on the 29th of January 1962.
The Streatham Bowl cost £300,000 to construct and fit out and was designed by Thomas Bennett who had also designed the Theatre's earlier Cinema reconstruction in 1955. On its opening it was said to be the largest Bowling Alley in Europe, with 40 lanes on two floors.
Right - The Streatham Bowl, formerly the Gaumont Palace Theatre, Streatham Hill, shortly after its closure, in August 2007 - Photo M.L.
The Streatham Bowl was later reduced in size so that a so called laser-drome could be included in the building. Both were closed in 2007 however, and the Theatre was eventually demolished, apart from its Facade, in October 2014.
An Apartment building called Gaumont Place stands on the site of the Theatre today. The Theatre's Facade which was retained still fronts the building however, and at the ground level where the Foyer used to be a Marks & Spencer Supermarket has been constructed in its place.
Above - A Google StreetView Image of the former Gaumont Palace Theatre, Streatham Hill in July 2024 - Click to Interact.
If you have any more information or images for this Theatre that you are willing to share please Contact me.

